
|
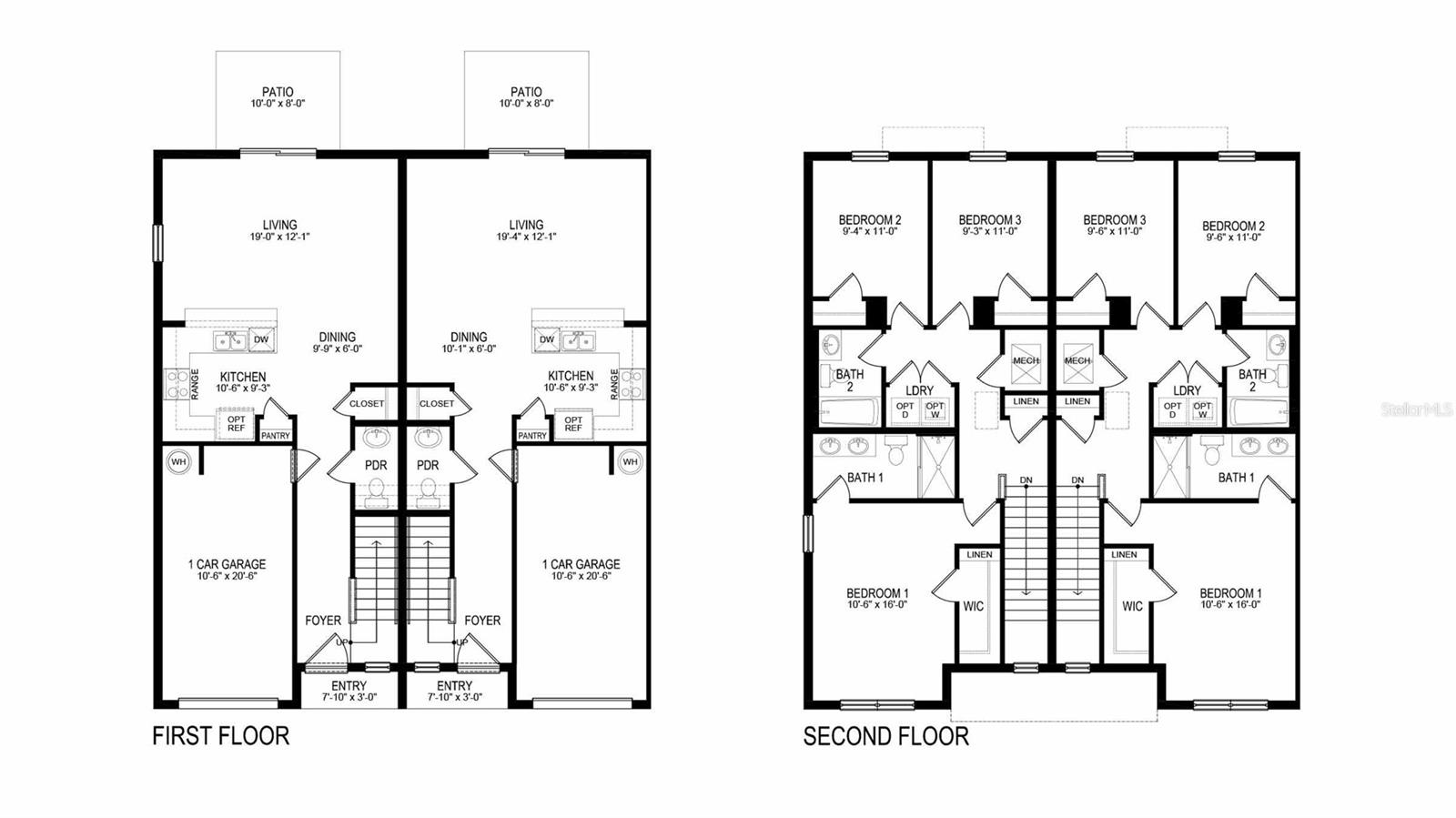
Bedrooms
3
|
Bathrooms
3
|
Living Area
1,464 Sqft
|
| Property Features | Property Features | |||
|---|---|---|---|---|
| MLS ID: | MFRTB8471444 | Year Built: | 2026 | |
| Appliances: | Dishwasher, Dryer, Microwave, Range, Refrigerator, Washer | Association Fee Includes: | Other | |
| Community Features: | Park | Construction Materials: | Block, Stucco | |
| Cooling: | Central Air | Country: | US | |
| County Or Parish: | Hillsborough | Direction Faces: | South | |
| Flooring: | Carpet, Ceramic Tile | Foundation Details: | Slab | |
| Furnished: | Unfurnished | Heating: | Central, Heat Pump | |
| Laundry Features: | Laundry Room | Levels: | Two | |
| Listing Agreement: | Exclusive Right To Sell | Occupant Type: | Vacant | |
| Other Equipment: | Irrigation Equipment | Parking Features: | Parking Pad | |
| Pets Allowed: | Yes | Property Condition: | Under Construction | |
| Property Sub Type: | Townhouse | Property Type: | Residential | |
| Road Surface Type: | Paved | Roof: | Shingle | |
| Sewer: | Public Sewer | Showing Requirements: | Contact Call Center | |
| Special Listing Conditions: | None | Standard Status: | Active | |
| State Or Province: | FL | Utilities: | Public, Underground Utilities | |
| Water Source: | Public | Window Features: | Blinds, Low-Emissivity Windows | |
| Rooms | Rooms | |||
|---|---|---|---|---|
| Great Room: | 19x12 ft | Kitchen: | 10x9 ft | |
| Primary Bedroom: | 11x16 ft | |||