
|
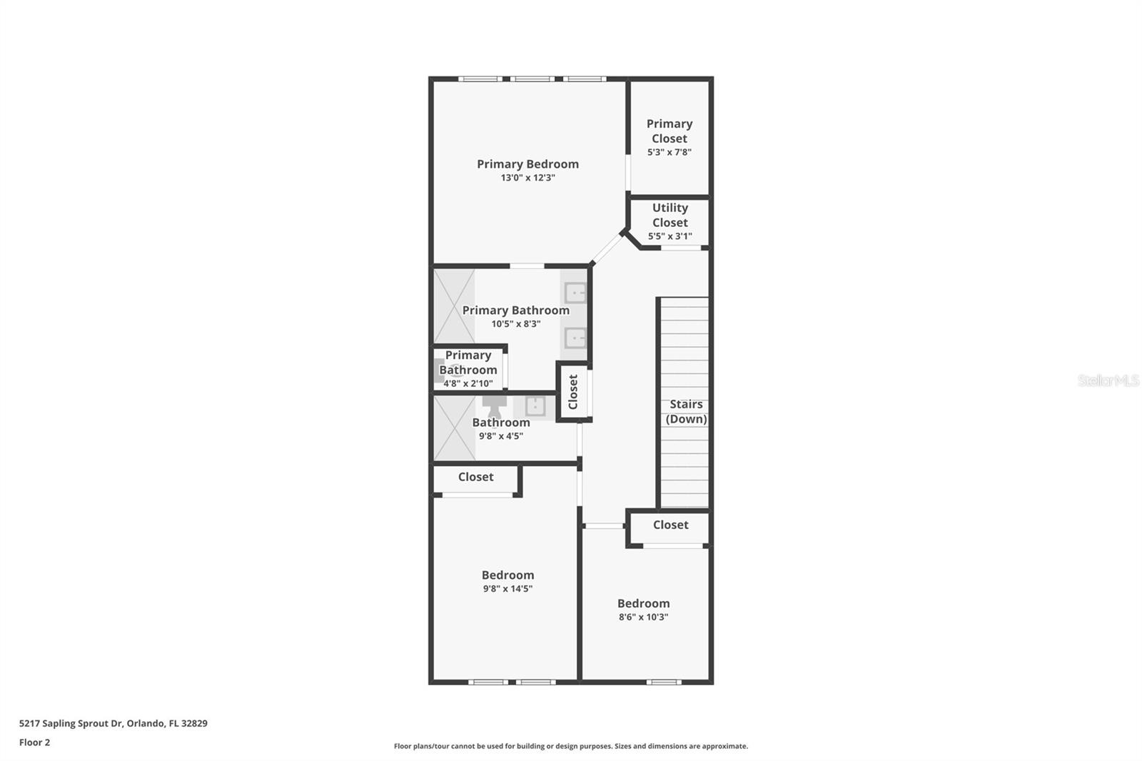
Bedrooms
3
|
Bathrooms
3
|
Living Area
1,620 Sqft
|
Lot Size
2,420 Sqft
|
| Property Features | Property Features | |||
|---|---|---|---|---|
| MLS ID: | MFRTB8483848 | Year Built: | 2021 | |
| Appliances: | Dishwasher, Microwave, Range, Refrigerator | Association Fee Includes: | Common Area Taxes, Pool, Escrow Reserves Fund, Insurance, Maintenance Structure, Management, Recreational Facilities | |
| Community Features: | Deed Restrictions, Park, Playground, Pool, Sidewalks | Construction Materials: | Block, Stucco, Frame | |
| Cooling: | Central Air | Country: | US | |
| County Or Parish: | Orange | Direction Faces: | West | |
| Exterior Features: | Courtyard, Private Entrance, Sidewalk | Flooring: | Luxury Vinyl | |
| Foundation Details: | Slab | Furnished: | Unfurnished | |
| Heating: | Central, Electric | Laundry Features: | Laundry Closet | |
| Levels: | Two | Listing Agreement: | Exclusive Right To Sell | |
| Listing Terms: | Cash, Conventional, FHA, VA Loan | Occupant Type: | Owner | |
| Other Equipment: | Private Entrance | Pets Allowed: | Yes | |
| Possession: | Close Of Escrow | Property Sub Type: | Townhouse | |
| Property Type: | Residential | Road Surface Type: | Asphalt | |
| Roof: | Shingle | Sewer: | Public Sewer | |
| Showing Requirements: | Combination Lock Box | Special Listing Conditions: | None | |
| Standard Status: | Active | State Or Province: | FL | |
| Utilities: | Cable Connected, Electricity Connected, Sewer Connected, Water Connected | Water Source: | Public | |
| Rooms | Rooms | |||
|---|---|---|---|---|
| Living Room: | Primary Bedroom: | |||
| Kitchen: | ||||