
|
Bedrooms
4
|
Bathrooms
4
|
Living Area
2,584 Sqft
|
Lot Size
313,632 Sqft
|
| Property Features | Property Features | |||
|---|---|---|---|---|
| MLS ID: | MFRTB8490007 | Year Built: | 1985 | |
| Appliances: | Dishwasher, Electric Water Heater, Range, Refrigerator, Water Filtration System | Body Type: | Double Wide | |
| Construction Materials: | Block, Concrete, Stucco | Cooling: | Central Air | |
| Country: | US | County Or Parish: | Hillsborough | |
| Direction Faces: | North | Exterior Features: | Awning(s), Fire Pit, Lighting, Other, Private Entrance, Private Mailbox, Rain Gutters, Storage | |
| Fencing: | Wire, Wood | Fireplace Features: | Family Room, Wood Burning | |
| Flooring: | Carpet, Tile | Foundation Details: | Slab | |
| Furnished: | Unfurnished | Heating: | Central, Electric | |
| Laundry Features: | Inside, Laundry Room | Levels: | One | |
| Listing Agreement: | Exclusive Right To Sell | Listing Terms: | Cash, Conventional, FHA, VA Loan | |
| Lot Features: | Cleared, Farm, In County, Level, Oversized Lot, Pasture, Unpaved, Zoned for Horses | Occupant Type: | Owner | |
| Other Equipment: | Fire Pit, Private Entrance | Other Structures: | Guest House, Other, Shed(s), Storage | |
| Parking Features: | Off Street, Oversized, Parking Pad, RV Carport | Patio And Porch Features: | Covered, Front Porch, Other, Patio, Screened | |
| Pets Allowed: | Yes | Pool Features: | In Ground, Lighting, Other, Screen Enclosure | |
| Property Sub Type: | Manufactured Home | Property Type: | Residential | |
| Road Surface Type: | Dirt, Gravel | Roof: | Shingle | |
| Sewer: | Septic Tank | Showing Requirements: | Supra Lock Box, Appointment Only, Lockbox, ShowingTime | |
| Special Listing Conditions: | None | Standard Status: | Active | |
| State Or Province: | FL | Utilities: | Cable Available, Cable Connected, Electricity Available, Electricity Connected | |
| Water Source: | Well | |||
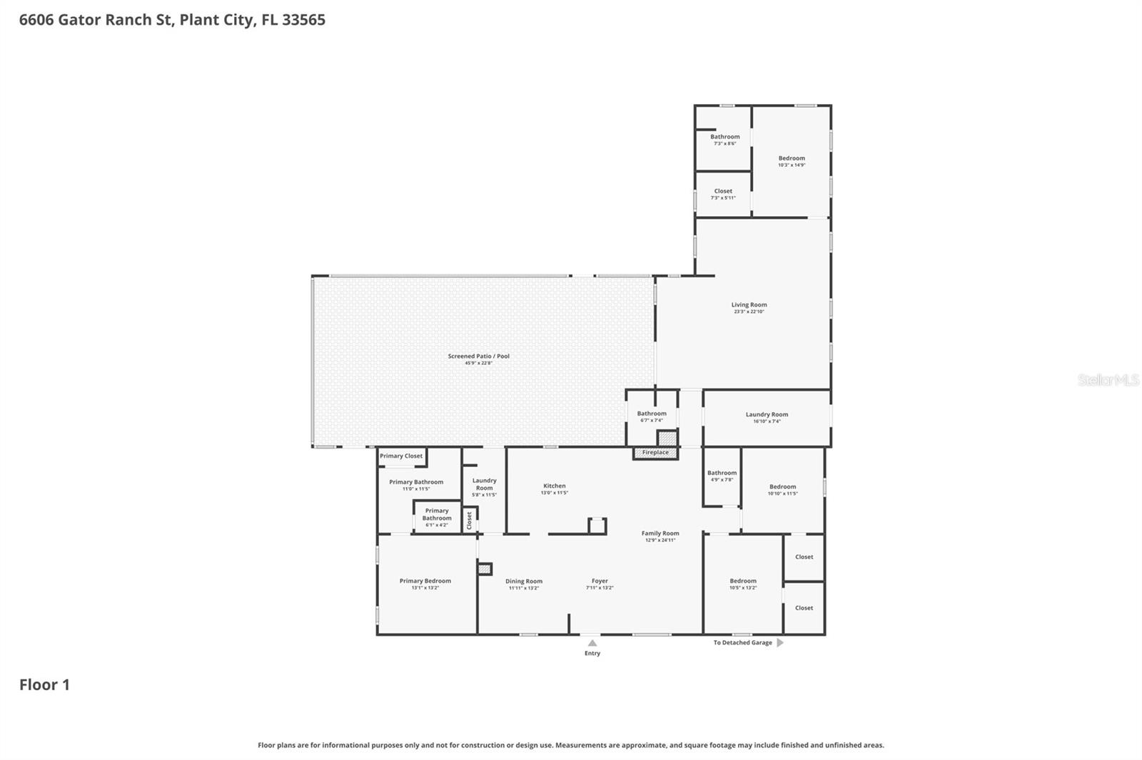
| Rooms | Rooms | |||
|---|---|---|---|---|
| Balcony/Porch/Lanai: | 45.9x22.8 ft | Living Room: | 12.9x24.11 ft | |
| Dining Room: | 11.11x13.2 ft | Kitchen: | 13x11.5 ft | |
| Laundry: | 5.8x11.5 ft | Primary Bedroom: | 13.1x13.2 ft | |
| Primary Bathroom: | 11x11.5 ft | Bedroom 2: | 10.5x13.2 ft | |
| Bedroom 3: | 10.1x11.5 ft | Bathroom 2: | 4.9x7.8 ft | |
| Family Room: | 23.3x22.1 ft | Laundry: | 16.1x7.4 ft | |
| Bathroom 3: | 6.7x7.4 ft | Bedroom 4: | 10.3x14.9 ft | |
| Bathroom 4: | 7.3x8.6 ft | |||