
|
Bedrooms
3
|
Bathrooms
2
|
Living Area
1,728 Sqft
|
Lot Size
7,597 Sqft
|
| Property Features | Property Features | |||
|---|---|---|---|---|
| MLS ID: | MFRTB8494375 | Year Built: | 1966 | |
| Appliances: | Dishwasher, Microwave, Range, Refrigerator | Construction Materials: | Concrete | |
| Cooling: | Central Air | Country: | US | |
| County Or Parish: | Pinellas | Direction Faces: | North | |
| Exterior Features: | Private Mailbox, Sliding Doors | Flooring: | Carpet, Ceramic Tile, Vinyl | |
| Foundation Details: | Slab | Furnished: | Unfurnished | |
| Heating: | Central | Laundry Features: | In Garage | |
| Levels: | One | Listing Agreement: | Exclusive Right To Sell | |
| Occupant Type: | Owner | Property Sub Type: | Single Family Residence | |
| Property Type: | Residential | Road Surface Type: | Asphalt | |
| Roof: | Shingle | Sewer: | Public Sewer | |
| Showing Requirements: | 24 Hour Notice, Listing Agent Must Accompany, Lock Box Electronic, See Remarks, ShowingTime | Special Listing Conditions: | None | |
| Standard Status: | Active | State Or Province: | FL | |
| Utilities: | BB/HS Internet Available, Cable Available, Electricity Available, Water Available | Water Source: | Public | |
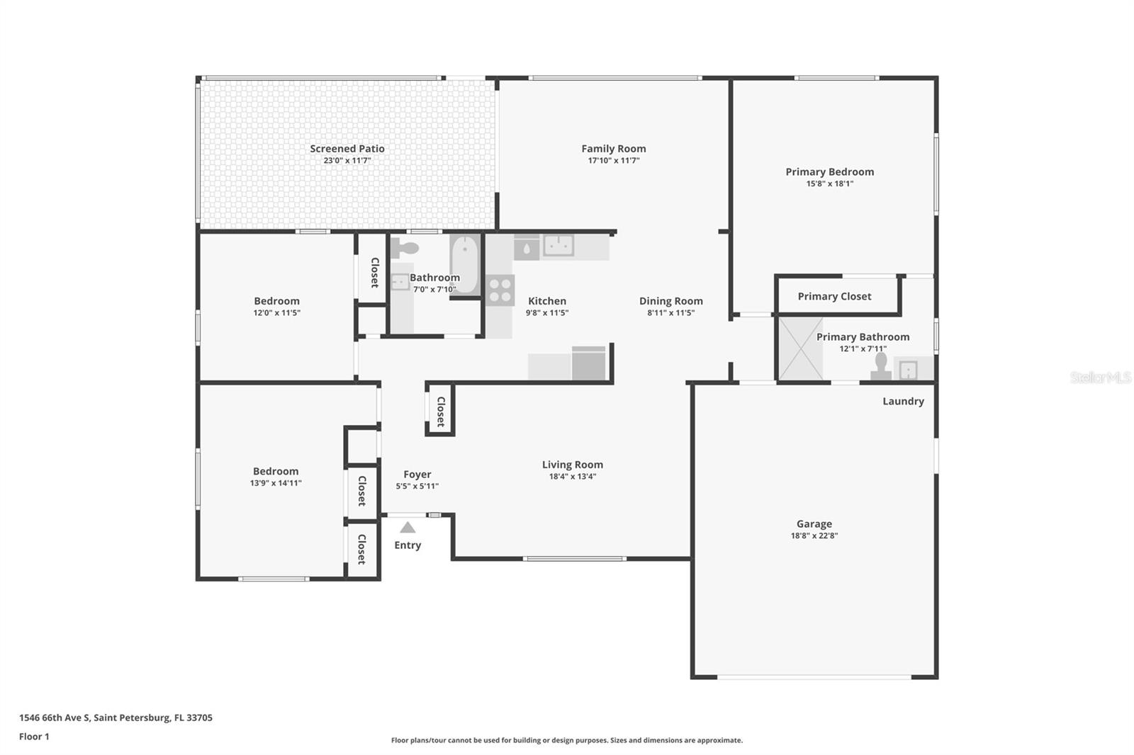
| Rooms | Rooms | |||
|---|---|---|---|---|
| Living Room: | 13.4x18.4 ft | Kitchen: | 9.8x11.5 ft | |
| Primary Bedroom: | 15.8x18.1 ft | |||