
|
Bedrooms
5
|
Bathrooms
4
|
Living Area
2,776 Sqft
|
Lot Size
8,712 Sqft
|
| Property Features | Property Features | |||
|---|---|---|---|---|
| MLS ID: | MFRTB8494487 | Year Built: | 2005 | |
| Appliances: | Dishwasher, Dryer, Microwave, Refrigerator, Washer, Water Filtration System | Association Fee Includes: | Pool, Recreational Facilities | |
| Community Features: | Park, Playground, Pool, Tennis Court(s) | Construction Materials: | Block, Stucco | |
| Cooling: | Central Air | Country: | US | |
| County Or Parish: | Alachua | Direction Faces: | Northwest | |
| Exterior Features: | Lighting, Private Entrance, Sidewalk | Flooring: | Carpet, Tile | |
| Foundation Details: | Slab | Furnished: | Unfurnished | |
| Heating: | Central, Electric | Laundry Features: | Laundry Room | |
| Levels: | Two | Listing Agreement: | Exclusive Right To Sell | |
| Listing Terms: | Cash, Conventional, FHA, VA Loan | Occupant Type: | Vacant | |
| Other Equipment: | Irrigation Equipment, Private Entrance | Pets Allowed: | Yes | |
| Property Sub Type: | Single Family Residence | Property Type: | Residential | |
| Road Surface Type: | Asphalt | Roof: | Shingle | |
| Sewer: | Public Sewer | Showing Requirements: | Supra Lock Box | |
| Special Listing Conditions: | None | Standard Status: | Active | |
| State Or Province: | FL | Utilities: | Cable Connected, Electricity Connected, Sewer Connected, Water Connected | |
| Water Source: | Public | |||
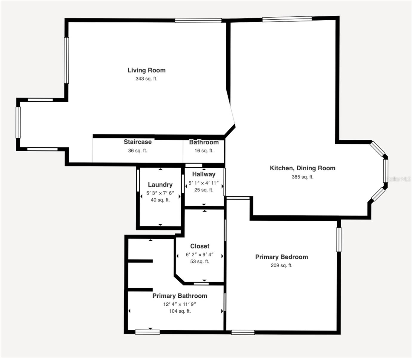
| Rooms | Rooms | |||
|---|---|---|---|---|
| Living Room: | Kitchen: | |||
| Primary Bedroom: | ||||