
|
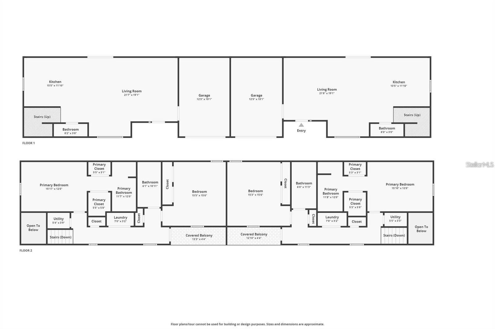
Bedrooms
4
|
Bathrooms
6
|
Living Area
3,112 Sqft
|
Lot Size
10,150 Sqft
|
| Property Features | Property Features | |||
|---|---|---|---|---|
| MLS ID: | MFRTB8496603 | Year Built: | 2023 | |
| Appliances: | Dishwasher, Disposal, Dryer, Electric Water Heater, Microwave, Range, Refrigerator, Washer | Construction Materials: | Block | |
| Cooling: | Central Air | Country: | US | |
| County Or Parish: | Pasco | Exterior Features: | Fence, Private Mailbox, Sliding Doors | |
| Flooring: | Luxury Vinyl | Foundation Details: | Slab | |
| Furnished: | Partially | Heating: | Central | |
| Laundry Features: | Laundry Closet | Levels: | Two | |
| Listing Agreement: | Exclusive Right To Sell | Listing Terms: | Cash, Conventional, VA Loan | |
| Lot Features: | Landscaped, Level, Paved | Occupant Type: | Tenant | |
| Other Equipment: | Irrigation Equipment | Parking Features: | Off Street | |
| Patio And Porch Features: | Front Porch, Rear Porch | Pets Allowed: | Yes | |
| Property Sub Type: | Duplex | Property Type: | Residential Income | |
| Road Responsibility: | Public Maintained Road | Road Surface Type: | Asphalt | |
| Roof: | Shingle | Sewer: | Public Sewer | |
| Showing Requirements: | Supra Lock Box | Special Listing Conditions: | None | |
| Standard Status: | Active | State Or Province: | FL | |
| Utilities: | Electricity Connected, Sewer Connected | View: | Trees/Woods | |
| Water Source: | Public | Window Features: | Blinds | |