
|
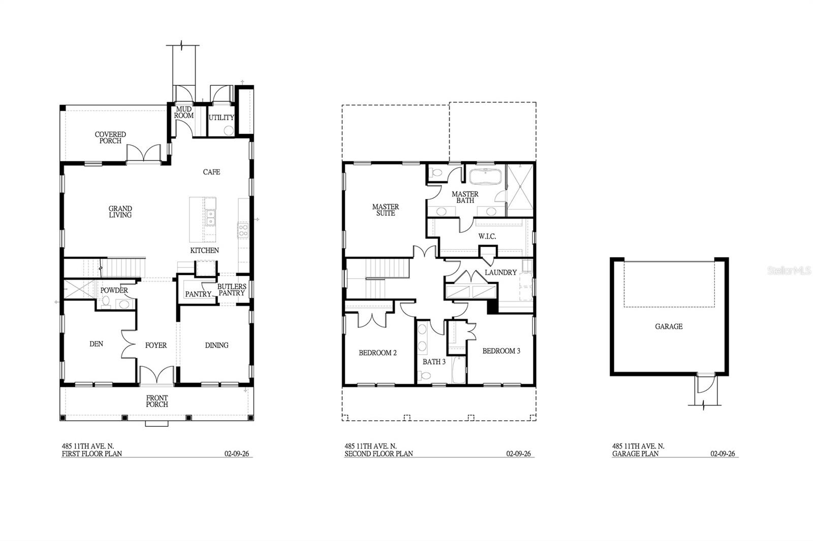
Bedrooms
4
|
Bathrooms
4
|
Living Area
2,789 Sqft
|
Lot Size
6,456 Sqft
|
| Property Features | Property Features | |||
|---|---|---|---|---|
| MLS ID: | MFRTB8496850 | Year Built: | 2026 | |
| Appliances: | Cooktop, Dishwasher, Dryer, Freezer, Gas Water Heater, Ice Maker, Microwave, Refrigerator, Tankless Water Heater | Architectural Style: | Craftsman | |
| Construction Materials: | Block, HardiPlank Type, Stucco, Frame | Cooling: | Central Air | |
| Country: | US | County Or Parish: | Pinellas | |
| Direction Faces: | South | Exterior Features: | Private Mailbox, Sidewalk | |
| Flooring: | Carpet, Hardwood | Foundation Details: | Block, Concrete Perimeter, Stem Wall | |
| Furnished: | Unfurnished | Heating: | Central, Heat Pump | |
| Laundry Features: | Laundry Room | Levels: | Two | |
| Listing Agreement: | Exclusive Right To Sell | Listing Terms: | Cash, Conventional, FHA, VA Loan | |
| Occupant Type: | Vacant | Parking Features: | Alley Access, Off Street | |
| Patio And Porch Features: | Porch, Rear Porch | Pets Allowed: | Cats OK, Dogs OK | |
| Property Condition: | Under Construction | Property Sub Type: | Single Family Residence | |
| Property Type: | Residential | Road Surface Type: | Asphalt, Paved | |
| Roof: | Shingle | Sewer: | Public Sewer | |
| Showing Requirements: | Combination Lock Box, See Remarks | Special Listing Conditions: | None | |
| Standard Status: | Active | State Or Province: | FL | |
| Utilities: | Cable Connected, Electricity Connected, Sewer Connected, Water Connected | Water Source: | None | |
| Rooms | Rooms | |||
|---|---|---|---|---|
| Kitchen: | 16x13 ft | Living Room: | 20x17 ft | |
| Dining Room: | 13x12 ft | Primary Bedroom: | 16x15 ft | |
| Primary Bathroom: | 13x10 ft | Bedroom 2: | 12x11 ft | |
| Bedroom 3: | 12x11 ft | |||