
|
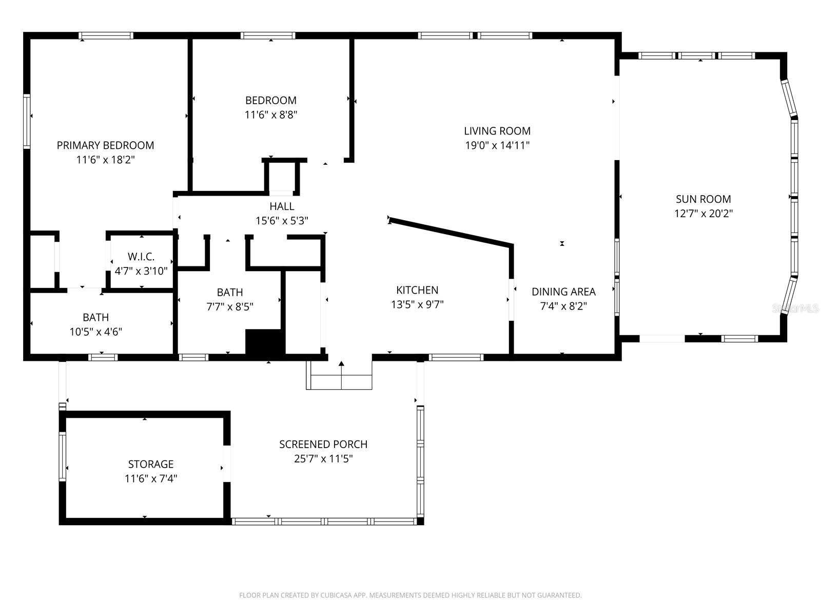
Bedrooms
2
|
Bathrooms
2
|
Living Area
1,320 Sqft
|
Lot Size
4,617 Sqft
|
| Property Features | Property Features | |||
|---|---|---|---|---|
| MLS ID: | MFRTB8496931 | Year Built: | 1979 | |
| Appliances: | Dishwasher, Electric Water Heater, Microwave, Range, Refrigerator | Association Amenities: | Cable TV, Clubhouse, Fitness Center, Maintenance, Pool, Recreation Facilities, Shuffleboard Court, Tennis Court(s), Wheelchair Access | |
| Association Fee Includes: | Cable TV, Internet, Maintenance Grounds, Management, Recreational Facilities, Sewer, Trash, Water | Body Type: | Double Wide | |
| Community Features: | Clubhouse, Community Mailbox, Deed Restrictions, Dog Park, Golf Carts OK, Pool, Sidewalks, Tennis Court(s) | Construction Materials: | Vinyl Siding | |
| Cooling: | Central Air | Country: | US | |
| County Or Parish: | Manatee | Direction Faces: | South | |
| Exterior Features: | Rain Gutters, Storage | Flooring: | Laminate | |
| Foundation Details: | Stem Wall | Furnished: | Unfurnished | |
| Heating: | Electric | Laundry Features: | Electric Dryer Hookup, In Kitchen, Laundry Closet, Washer Hookup | |
| Levels: | One | Listing Agreement: | Exclusive Agency | |
| Listing Terms: | Cash, Conventional, FHA, VA Loan | Occupant Type: | Vacant | |
| Other Equipment: | Irrigation Equipment | Other Structures: | Workshop | |
| Parking Features: | Covered, Driveway | Patio And Porch Features: | Covered, Screened | |
| Pets Allowed: | Breed Restrictions, Cats OK, Dogs OK, Yes | Possession: | Close Of Escrow | |
| Property Sub Type: | Manufactured Home | Property Type: | Residential | |
| Road Surface Type: | Asphalt, Paved | Roof: | Roof Over | |
| Security Features: | Smoke Detector(s) | Sewer: | Public Sewer | |
| Showing Requirements: | Supra Lock Box, Call Listing Agent, ShowingTime | Special Listing Conditions: | None | |
| Standard Status: | Active | State Or Province: | FL | |
| Utilities: | BB/HS Internet Available, Electricity Connected, Public, Sewer Connected, Water Connected | Water Source: | Public | |
| Window Features: | Skylight(s), Blinds, Double Pane Windows | |||
| Rooms | Rooms | |||
|---|---|---|---|---|
| Kitchen: | Dining Room: | |||
| Living Room: | Primary Bedroom: | |||
| Primary Bathroom: | Bathroom 2: | |||
| Bedroom 2: | Foyer: | |||
| Workshop: | ||||