
|
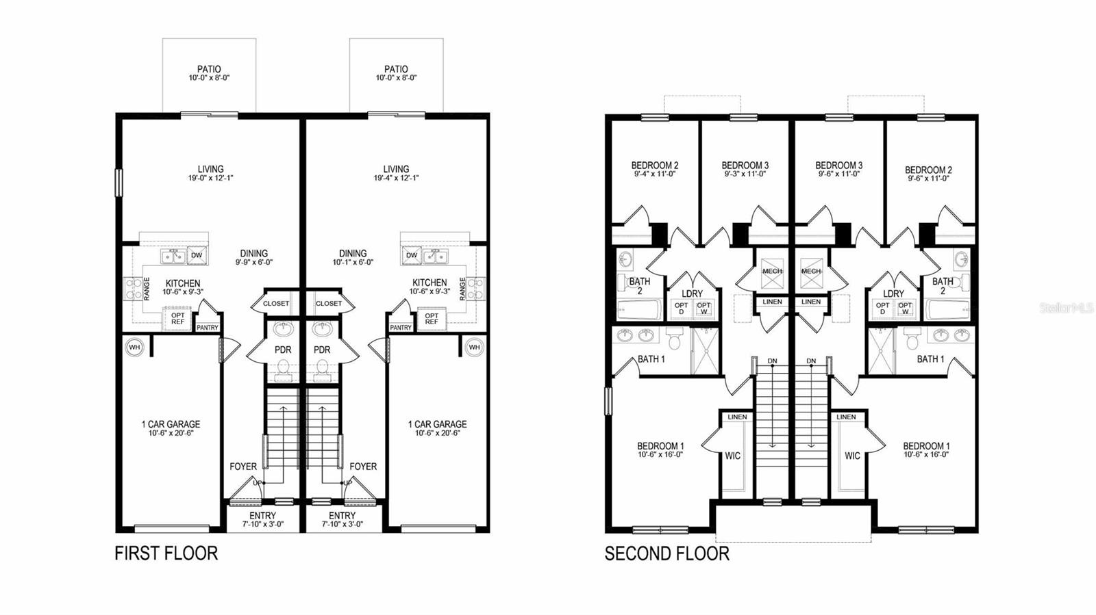
Bedrooms
3
|
Bathrooms
3
|
Living Area
1,464 Sqft
|
| Property Features | Property Features | |||
|---|---|---|---|---|
| MLS ID: | MFRTB8497106 | Year Built: | 2026 | |
| Appliances: | Dishwasher, Electric Water Heater, Microwave, Refrigerator, Washer | Association Amenities: | Clubhouse, Playground, Pool | |
| Association Fee Includes: | Maintenance Grounds | Community Features: | Park, Playground, Pool | |
| Construction Materials: | Block, Stucco | Cooling: | Central Air | |
| Country: | US | County Or Parish: | Pasco | |
| Direction Faces: | North | Flooring: | Carpet, Luxury Vinyl | |
| Foundation Details: | Slab | Furnished: | Unfurnished | |
| Heating: | Central, Heat Pump | Laundry Features: | Laundry Room | |
| Levels: | Two | Listing Agreement: | Exclusive Right To Sell | |
| Occupant Type: | Vacant | Other Equipment: | Irrigation Equipment | |
| Parking Features: | Parking Pad | Pets Allowed: | Yes | |
| Property Condition: | Under Construction | Property Sub Type: | Townhouse | |
| Property Type: | Residential | Road Surface Type: | Other | |
| Roof: | Shingle | Sewer: | Public Sewer | |
| Showing Requirements: | Contact Call Center | Special Listing Conditions: | None | |
| Standard Status: | Active | State Or Province: | FL | |
| Utilities: | Public | Water Source: | Public | |
| Window Features: | Blinds, Double Pane Windows, Low-Emissivity Windows | |||
| Rooms | Rooms | |||
|---|---|---|---|---|
| Great Room: | 19x12 ft | Kitchen: | 10x9 ft | |
| Primary Bedroom: | 11x16 ft | |||