
|
Bedrooms
3
|
Bathrooms
2
|
Living Area
1,822 Sqft
|
Lot Size
15,608 Sqft
|
| Property Features | Property Features | |||
|---|---|---|---|---|
| MLS ID: | MFRTB8497212 | Year Built: | 1980 | |
| Appliances: | Dishwasher, Microwave, Range, Refrigerator | Community Features: | Street Lights | |
| Construction Materials: | Block, Concrete, Stucco | Cooling: | Central Air | |
| Country: | US | County Or Parish: | Pinellas | |
| Direction Faces: | Southwest | Exterior Features: | Lighting, Other, Sidewalk, Storage | |
| Fencing: | Vinyl, Wood | Flooring: | Laminate, Tile | |
| Foundation Details: | Slab | Furnished: | Unfurnished | |
| Heating: | Central, Electric | Laundry Features: | Inside | |
| Levels: | One | Listing Agreement: | Exclusive Right To Sell | |
| Listing Terms: | Cash, Conventional, FHA, VA Loan | Lot Features: | Cul-De-Sac | |
| Occupant Type: | Owner | Other Structures: | Shed(s) | |
| Parking Features: | Driveway | Patio And Porch Features: | Covered, Patio, Screened | |
| Pets Allowed: | Yes | Pool Features: | In Ground, Lighting, Other | |
| Property Sub Type: | Single Family Residence | Property Type: | Residential | |
| Road Surface Type: | Concrete, Paved | Roof: | Shingle | |
| Sewer: | Public Sewer | Showing Requirements: | Sentri Lock Box, Appointment Only, Call Before Showing, Lockbox, ShowingTime | |
| Special Listing Conditions: | None | Standard Status: | Active | |
| State Or Province: | FL | Utilities: | Cable Available, Cable Connected, Electricity Available, Electricity Connected, Sewer Available, Sewer Connected, Water Available, Water Connected | |
| Water Source: | Public | |||
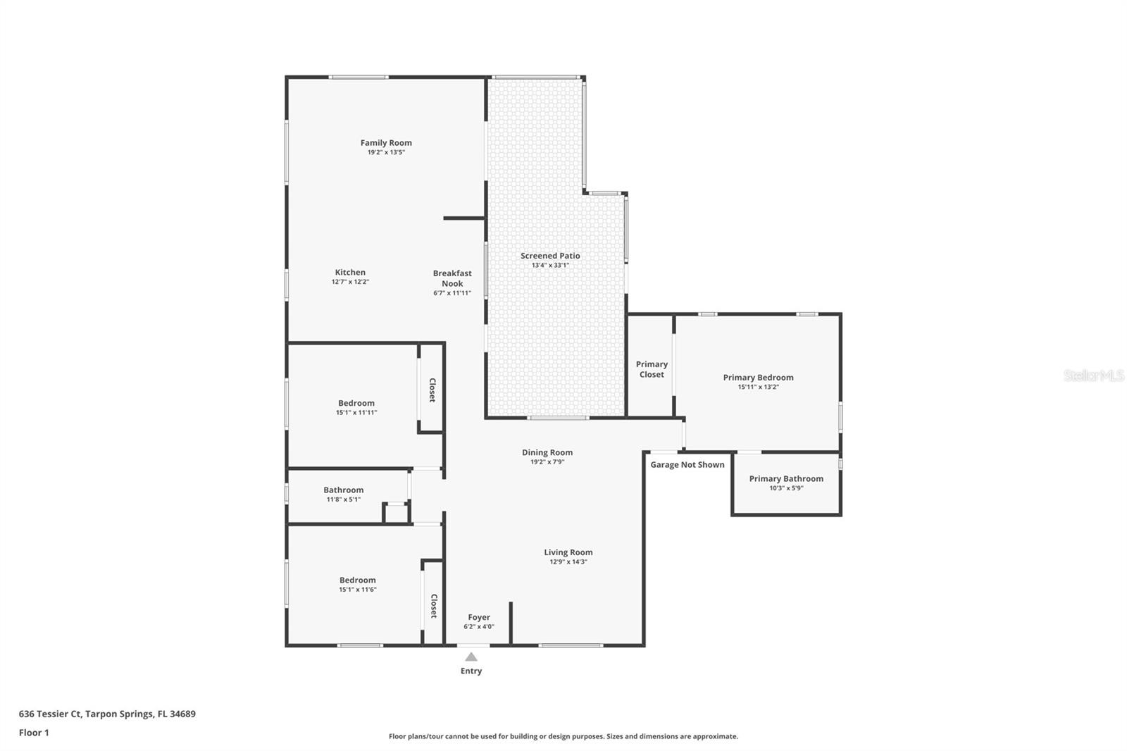
| Rooms | Rooms | |||
|---|---|---|---|---|
| Living Room: | 12.9x14.3 ft | Dining Room: | 19.2x7.9 ft | |
| Dinette: | 6.7x11.11 ft | Kitchen: | 12.7x12.2 ft | |
| Family Room: | 19.2x13.5 ft | Primary Bedroom: | 15.11x13.2 ft | |
| Bedroom 2: | 15.1x11.6 ft | Bedroom 3: | 15.1x11.11 ft | |
| Balcony/Porch/Lanai: | 13.4x33.1 ft | |||