
|
Bedrooms
4
|
Bathrooms
4
|
Living Area
3,005 Sqft
|
Lot Size
4,922 Sqft
|
| Property Features | Property Features | |||
|---|---|---|---|---|
| MLS ID: | MFRTB8497542 | Year Built: | 2025 | |
| Appliances: | Convection Oven, Cooktop, Dishwasher, Disposal, Electric Water Heater, Exhaust Fan, Microwave | Architectural Style: | Contemporary | |
| Community Features: | Golf Carts OK, Irrigation-Reclaimed Water, Park, Playground, Pool, Sidewalks, Tennis Court(s) | Construction Materials: | Block, Frame | |
| Cooling: | Central Air | Country: | US | |
| County Or Parish: | Pinellas | Direction Faces: | South | |
| Exterior Features: | Balcony, Private Yard, Sliding Doors | Fencing: | Vinyl | |
| Flooring: | Luxury Vinyl | Foundation Details: | Block, Slab | |
| Furnished: | Unfurnished | Heating: | Central | |
| Laundry Features: | Laundry Room, Upper Level | Levels: | Three Or More | |
| Listing Agreement: | Exclusive Right To Sell | Listing Terms: | Cash, Conventional, VA Loan | |
| Lot Features: | FloodZone, City Limits, Sidewalk | Occupant Type: | Vacant | |
| Other Equipment: | Private Yard | Pets Allowed: | Yes | |
| Possession: | Close Of Escrow | Property Condition: | Completed | |
| Property Sub Type: | Single Family Residence | Property Type: | Residential | |
| Road Responsibility: | Public Maintained Road | Road Surface Type: | Asphalt, Paved | |
| Roof: | Shingle | Sewer: | Public Sewer | |
| Showing Requirements: | Supra Lock Box, Call Before Showing | Special Listing Conditions: | None | |
| Standard Status: | Active | State Or Province: | FL | |
| Utilities: | Cable Available, Electricity Connected, Public, Sewer Connected, Sprinkler Recycled, Water Connected | Water Source: | None | |
| Window Features: | Aluminum Frames, Storm Window(s) | |||
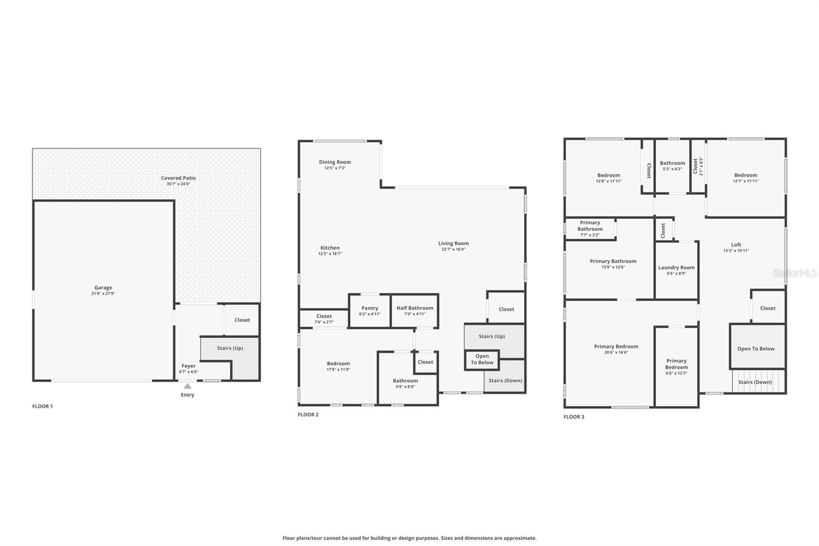
| Rooms | Rooms | |||
|---|---|---|---|---|
| Kitchen: | 12.5x18.7 ft | Dining Room: | 12.5x7.3 ft | |
| Living Room: | 22.7x16.4 ft | Primary Bedroom: | 20.6x16.6 ft | |