
|
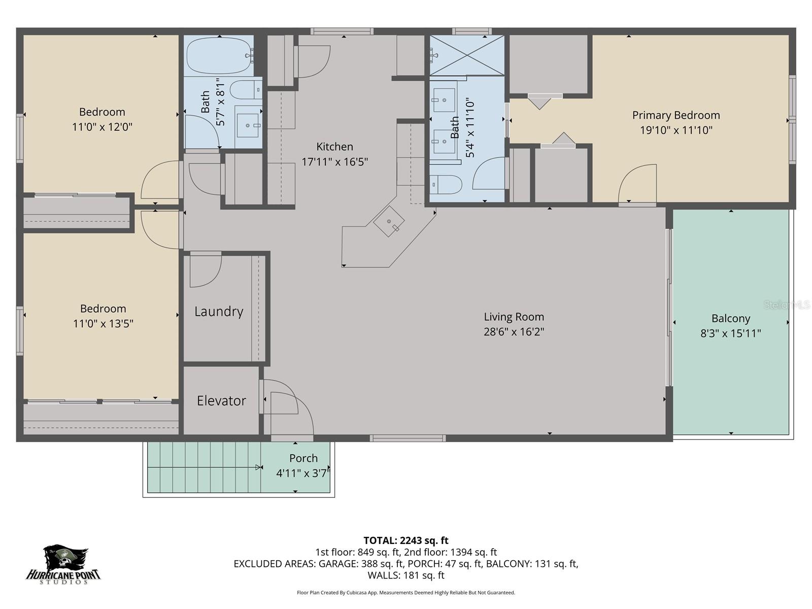
Bedrooms
3
|
Bathrooms
2
|
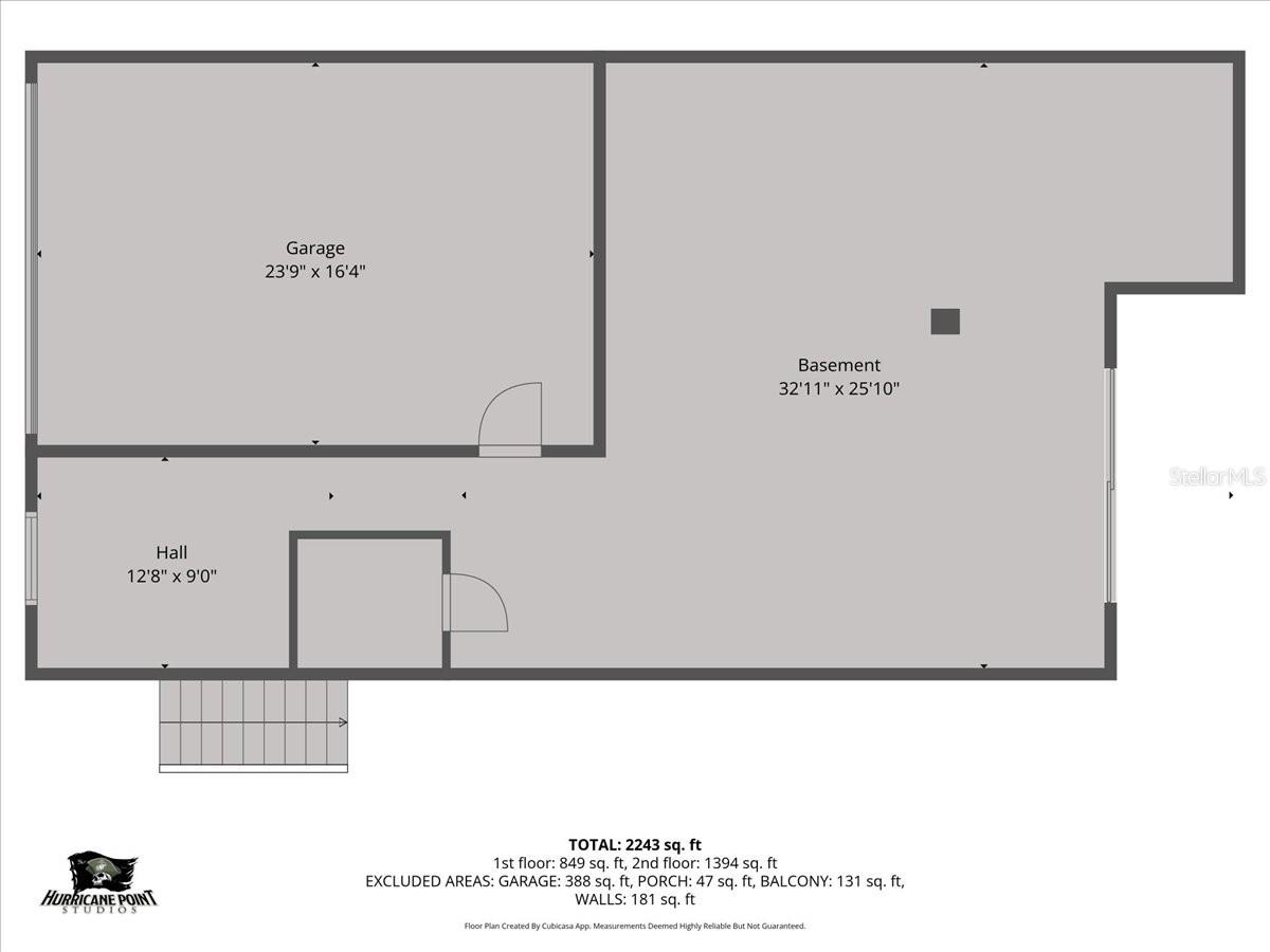
Living Area
1,535 Sqft
|
Lot Size
5,000 Sqft
|
| Property Features | Property Features | |||
|---|---|---|---|---|
| MLS ID: | MFRTB8497585 | Year Built: | 2026 | |
| Appliances: | Dishwasher, Electric Water Heater, Microwave | Architectural Style: | Elevated | |
| Community Features: | Golf Carts OK | Construction Materials: | Block, HardiPlank Type, Stucco, Frame | |
| Cooling: | Central Air | Country: | US | |
| County Or Parish: | Hernando | Direction Faces: | North | |
| Exterior Features: | Sliding Doors | Flooring: | Luxury Vinyl | |
| Foundation Details: | Block, Slab, Stilt/On Piling | Furnished: | Unfurnished | |
| Heating: | Central | Laundry Features: | Electric Dryer Hookup, Inside, Laundry Room, Washer Hookup | |
| Levels: | Two | Listing Agreement: | Exclusive Right To Sell | |
| Listing Terms: | Cash, Conventional, FHA, VA Loan | Lot Features: | Cleared, Flood Insurance Required, FloodZone, Near Marina, Near Public Transit, Paved | |
| Occupant Type: | Vacant | Parking Features: | Golf Cart Parking, Oversized, Tandem | |
| Patio And Porch Features: | Covered, Porch, Rear Porch | Pets Allowed: | Yes | |
| Possession: | Close Of Escrow | Property Condition: | Under Construction | |
| Property Sub Type: | Single Family Residence | Property Type: | Residential | |
| Road Surface Type: | Asphalt, Paved | Roof: | Shingle | |
| Sewer: | Public Sewer | Showing Requirements: | Appointment Only, Lock Box Coded, ShowingTime | |
| Special Listing Conditions: | None | Standard Status: | Active | |
| State Or Province: | FL | Utilities: | Cable Available, Electricity Connected, Sewer Connected, Water Connected | |
| View: | Water | Water Source: | Public | |
| Waterfront Features: | Canal - Saltwater | |||
| Rooms | Rooms | |||
|---|---|---|---|---|
| Dining Room: | Living Room: | |||
| Primary Bedroom: | Kitchen: | |||