
|
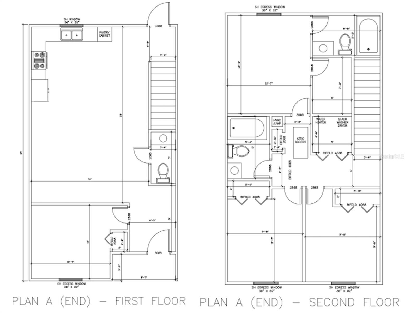
Bedrooms
4
|
Bathrooms
3
|
Living Area
1,384 Sqft
|
Lot Size
95,418 Sqft
|
| Property Features | Property Features | |||
|---|---|---|---|---|
| MLS ID: | MFRTB8497982 | Year Built: | 2026 | |
| Appliances: | Built-In Oven, Cooktop, Dishwasher, Disposal, Dryer, Electric Water Heater, Freezer, Ice Maker, Microwave, Refrigerator, Washer | Community Features: | Sidewalks | |
| Cooling: | Central Air | Country: | US | |
| County Or Parish: | Polk | Furnished: | Unfurnished | |
| Heating: | Central | Laundry Features: | Inside, Laundry Room | |
| Lease Term: | Twelve Months | Levels: | Two | |
| Occupant Type: | Vacant | Owner Pays: | Grounds Care, Pest Control | |
| Pets Allowed: | Breed Restrictions, Cats OK, Dogs OK, Monthly Pet Fee, Number Limit | Property Condition: | Completed | |
| Property Sub Type: | Townhouse | Property Type: | Residential Lease | |
| Road Surface Type: | Asphalt, Paved | Showing Requirements: | Call Listing Agent, Other | |
| Standard Status: | Active | State Or Province: | FL | |
| Rooms | Rooms | |||
|---|---|---|---|---|
| Primary Bedroom: | Bedroom 2: | |||
| Bedroom 3: | Bedroom 4: | |||
| Bathroom 2: | Primary Bathroom: | |||
| Bathroom 3: | ||||