1 MAPLEWOOD AVE, CLEARWATER, FL, 33765
$725,000
Residential
Bedrooms
4
Bathrooms
3
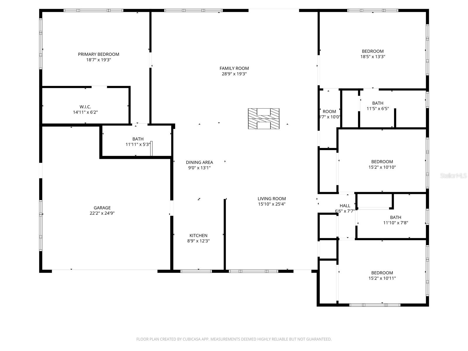
Living Area
2,727 Sqft
Lot Size
12,214 Sqft
Spacious, versatile, and perfectly located! This 4 bedroom, 3 bathroom home in Clearwater offers 2,727 square feet of interior living space designed for both comfort and opportunity. Step inside to find expansive living areas with multiple flexible spaces—ideal for entertaining and accommodating larger households. A rare highlight of this home is the presence of two primary suites with generous sized walk-in closets and en-suite bathrooms, offering excellent privacy and comfort. Outdoors, enjoy your own private retreat featuring a screened in, oversized pool and an oversized yard (corner lot), perfect for relaxing, hosting, or creating the ultimate Florida outdoor lifestyle. The two-car garage adds convenience and ample storage. Located just minutes from the world-renowned Clearwater Beach—consistently ranked among the top beaches in the United States—you’ll enjoy easy access to white sand, turquoise waters, and vibrant coastal attractions. Commuting is effortless with Tampa International Airport nearby, making travel in and out of the area seamless. Even better, no leasing restrictions mean this property is eligible for short-term rentals, offering an outstanding opportunity for investors or those seeking a flexible primary residence with income potential. Whether you're looking for a full-time home, vacation getaway, or income-producing property, this Clearwater gem delivers space, location, and versatility in one exceptional package.
Property Details
Property Features Property Features
MLS ID: MFRTB8498771 Year Built: 1963
Appliances: Convection Oven, Cooktop, Dishwasher, Disposal, Dryer, Electric Water Heater, Exhaust Fan, Range Hood, Refrigerator Construction Materials: Block
Cooling: Central Air Country: US
County Or Parish: Pinellas Direction Faces: West
Exterior Features: Lighting Fireplace Features: Wood Burning
Flooring: Carpet, Ceramic Tile Foundation Details: Slab
Furnished: Negotiable Heating: Electric
Laundry Features: In Garage Levels: One
Listing Agreement: Exclusive Right To Sell Occupant Type: Tenant
Pool Features: Gunite, Heated, In Ground, Lighting, Outside Bath Access Property Sub Type: Single Family Residence
Property Type: Residential Road Surface Type: Asphalt
Roof: Shingle Sewer: Private Sewer
Showing Requirements: Appointment Only Special Listing Conditions: None
Standard Status: Active State Or Province: FL
Utilities: Electricity Connected Water Source: Public
Rooms Rooms
Kitchen: Primary Bedroom:
Great Room:
We love to hear from you