
|
Bedrooms
5
|
Bathrooms
6
|
Living Area
5,830 Sqft
|
Lot Size
11,112 Sqft
|
| Property Features | Property Features | |||
|---|---|---|---|---|
| MLS ID: | MFRTB8498906 | Year Built: | 2026 | |
| Appliances: | Convection Oven, Dishwasher, Disposal, Dryer, Freezer, Gas Water Heater, Ice Maker, Microwave, Range, Range Hood, Refrigerator, Tankless Water Heater, Touchless Faucet, Washer, Wine Refrigerator | Architectural Style: | Custom, Elevated | |
| Association Amenities: | Clubhouse, Park, Pickleball Court(s), Playground, Recreation Facilities, Tennis Court(s) | Community Features: | Clubhouse, Deed Restrictions, Golf Carts OK, Irrigation-Reclaimed Water, Park, Playground, Tennis Court(s), Street Lights | |
| Construction Materials: | Block, Concrete | Cooling: | Central Air, Humidity Control, Zoned | |
| Country: | US | County Or Parish: | Pinellas | |
| Direction Faces: | North | Exterior Features: | Balcony, Lighting, Private Entrance, Sliding Doors | |
| Fencing: | Fenced, Masonry | Fireplace Features: | Gas, Living Room | |
| Flooring: | Hardwood, Marble, Wood | Foundation Details: | Slab, Stilt/On Piling | |
| Furnished: | Unfurnished | Green Energy Efficient: | Doors, HVAC, Lighting, Pool, Roof, Thermostat, Water Heater, Windows | |
| Green Indoor Air Quality: | Air Filters MERV 10+, HVAC Cartridge/Media Filter | Green Water Conservation: | Irrigation-Reclaimed Water | |
| Heating: | Central, Electric, Heat Pump, Zoned | Laundry Features: | Gas Dryer Hookup, Inside, Laundry Room, Upper Level | |
| Levels: | Three Or More | Listing Agreement: | Exclusive Right To Sell | |
| Listing Terms: | Cash, Conventional | Lot Features: | Cul-De-Sac, Flood Insurance Required, FloodZone, City Limits, In County, Landscaped, Paved | |
| Occupant Type: | Vacant | Other Equipment: | Irrigation Equipment, Private Entrance | |
| Parking Features: | Driveway, Garage Door Opener, Guest, Oversized, Tandem | Patio And Porch Features: | Covered, Deck, Front Porch, Patio, Porch, Rear Porch | |
| Pets Allowed: | Cats OK, Dogs OK, Yes | Pool Features: | Deck, Gunite, Heated, In Ground, Lighting, Pool Alarm, Salt Water, Tile | |
| Possession: | Close Of Escrow | Property Condition: | Completed | |
| Property Sub Type: | Single Family Residence | Property Type: | Residential | |
| Road Responsibility: | Public Maintained Road | Road Surface Type: | Paved | |
| Roof: | Other | Security Features: | Smoke Detector(s) | |
| Sewer: | Public Sewer | Showing Requirements: | Appointment Only, Call Before Showing, Call Listing Agent, Listing Agent Must Accompany | |
| Spa Features: | Heated, In Ground | Special Listing Conditions: | None | |
| Standard Status: | Active | State Or Province: | FL | |
| Utilities: | BB/HS Internet Available, Cable Available, Cable Connected, Electricity Available, Electricity Connected, Fire Hydrant, Natural Gas Available, Natural Gas Connected, Public, Sewer Available, Sewer Connected, Sprinkler Recycled, Underground Utilities, Water Available, Water Connected | Vegetation: | Mature Landscaping, Trees/Landscaped | |
| View: | Water | Water Source: | Public | |
| Waterfront Features: | Intracoastal Waterway | Window Features: | Aluminum Frames, Double Pane Windows, ENERGY STAR Qualified Windows, Insulated Windows, Low-Emissivity Windows, Storm Window(s), Thermal Windows | |
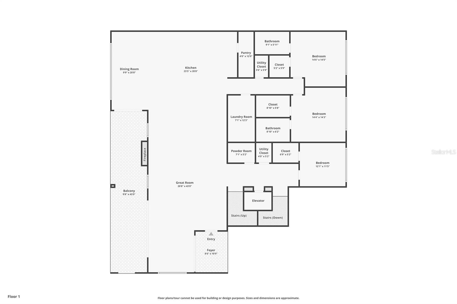
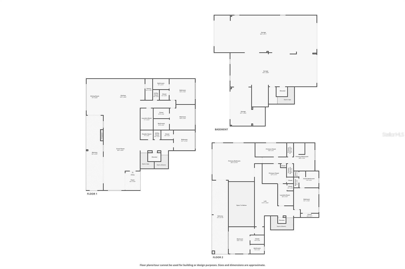
| Rooms | Rooms | |||
|---|---|---|---|---|
| Primary Bedroom: | 24x23 ft | Kitchen: | 28x23 ft | |
| Living Room: | 43x21 ft | |||