
|
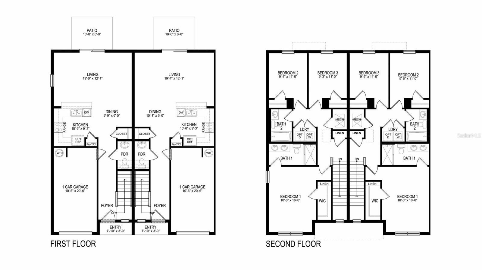
Bedrooms
3
|
Bathrooms
3
|
Living Area
1,463 Sqft
|
| Property Features | Property Features | |||
|---|---|---|---|---|
| MLS ID: | MFRTB8499487 | Year Built: | 2026 | |
| Appliances: | Dishwasher, Dryer, Microwave, Range, Refrigerator, Washer | Association Amenities: | Playground, Pool | |
| Association Fee Includes: | Pool | Community Features: | Park, Playground, Pool | |
| Construction Materials: | Block, Stucco | Cooling: | Central Air | |
| Country: | US | County Or Parish: | Pasco | |
| Direction Faces: | Northwest | Flooring: | Carpet, Luxury Vinyl | |
| Foundation Details: | Slab | Furnished: | Unfurnished | |
| Heating: | Central, Heat Pump | Laundry Features: | Laundry Room | |
| Levels: | Two | Listing Agreement: | Exclusive Right To Sell | |
| Occupant Type: | Vacant | Other Equipment: | Irrigation Equipment | |
| Pets Allowed: | Yes | Property Condition: | Under Construction | |
| Property Sub Type: | Townhouse | Property Type: | Residential | |
| Road Surface Type: | Paved | Roof: | Shingle | |
| Sewer: | Public Sewer | Showing Requirements: | Contact Call Center | |
| Special Listing Conditions: | None | Standard Status: | Active | |
| State Or Province: | FL | Utilities: | Public | |
| Water Source: | Public | Window Features: | Blinds, Double Pane Windows, Low-Emissivity Windows | |
| Rooms | Rooms | |||
|---|---|---|---|---|
| Great Room: | 19x21 ft | Primary Bedroom: | 11x16 ft | |
| Kitchen: | 10x9 ft | |||