
|
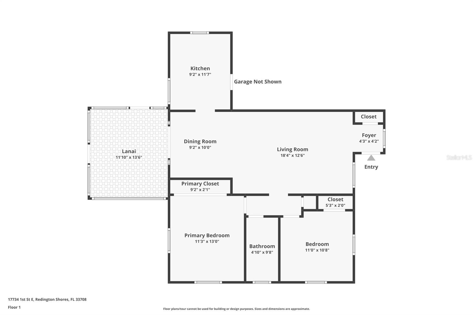
Bedrooms
2
|
Bathrooms
1
|
Living Area
961 Sqft
|
Lot Size
4,748 Sqft
|
| Property Features | Property Features | |||
|---|---|---|---|---|
| MLS ID: | MFRTB8499518 | Year Built: | 1962 | |
| Appliances: | Dishwasher, Dryer, Microwave, Range, Refrigerator, Washer | Construction Materials: | Block, Stucco | |
| Cooling: | Central Air | Country: | US | |
| County Or Parish: | Pinellas | Direction Faces: | Northeast | |
| Exterior Features: | Storage | Fencing: | Vinyl | |
| Flooring: | Ceramic Tile | Foundation Details: | Slab | |
| Furnished: | Furnished | Heating: | Central, Electric | |
| Laundry Features: | In Garage | Levels: | One | |
| Listing Agreement: | Exclusive Right To Sell | Listing Terms: | Cash, Conventional, FHA, VA Loan | |
| Lot Features: | FloodZone, City Limits, Level | Occupant Type: | Vacant | |
| Other Structures: | Shed(s) | Parking Features: | Driveway | |
| Possession: | Close Of Escrow | Property Condition: | Completed | |
| Property Sub Type: | Single Family Residence | Property Type: | Residential | |
| Road Surface Type: | Asphalt | Roof: | Shingle | |
| Sewer: | Public Sewer | Showing Requirements: | Appointment Only, Combination Lock Box, ShowingTime | |
| Special Listing Conditions: | None | Standard Status: | Active | |
| State Or Province: | FL | Utilities: | Electricity Connected, Sewer Connected, Water Connected | |
| Water Source: | Public | |||
| Rooms | Rooms | |||
|---|---|---|---|---|
| Kitchen: | 9x12 ft | Dining Room: | 9x10 ft | |
| Living Room: | 18x13 ft | Primary Bedroom: | 11x13 ft | |
| Bedroom 2: | 11x11 ft | Bathroom 1: | 5x9 ft | |