
|
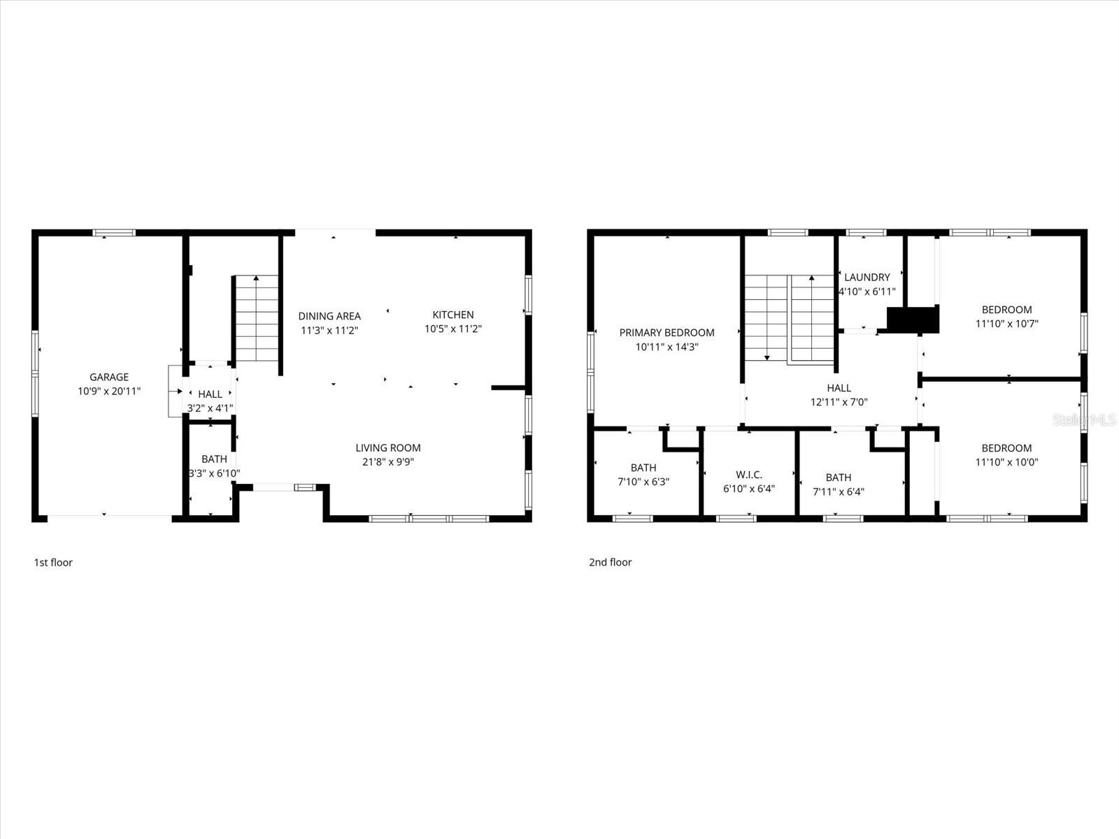
Bedrooms
3
|
Bathrooms
3
|
Living Area
1,419 Sqft
|
Lot Size
3,372 Sqft
|
| Property Features | Property Features | |||
|---|---|---|---|---|
| MLS ID: | MFRTB8499607 | Year Built: | 2025 | |
| Appliances: | Convection Oven, Cooktop, Dishwasher, Dryer, Electric Water Heater, Exhaust Fan, Freezer, Ice Maker, Microwave, Range Hood, Refrigerator, Washer | Construction Materials: | SIP (Structurally Insulated Panel) | |
| Cooling: | Central Air | Country: | US | |
| County Or Parish: | Pinellas | Direction Faces: | North | |
| Exterior Features: | Garden, Private Mailbox, Private Yard, Sidewalk | Flooring: | Luxury Vinyl | |
| Foundation Details: | Slab | Furnished: | Unfurnished | |
| Green Energy Efficient: | Insulation | Heating: | Central, Electric | |
| Laundry Features: | Laundry Room | Levels: | Two | |
| Listing Agreement: | Exclusive Right To Sell | Occupant Type: | Vacant | |
| Other Equipment: | Irrigation Equipment, Private Yard | Property Condition: | Completed | |
| Property Sub Type: | Single Family Residence | Property Type: | Residential | |
| Road Surface Type: | Asphalt | Roof: | Membrane | |
| Sewer: | Public Sewer | Showing Requirements: | ShowingTime | |
| Special Listing Conditions: | None | Standard Status: | Active | |
| State Or Province: | FL | Utilities: | Cable Available, Electricity Connected, Sewer Connected, Sprinkler Meter, Water Connected | |
| Water Source: | Public | |||
| Rooms | Rooms | |||
|---|---|---|---|---|
| Kitchen: | Primary Bedroom: | |||
| Living Room: | ||||