
|
Bedrooms
2
|
Bathrooms
2
|
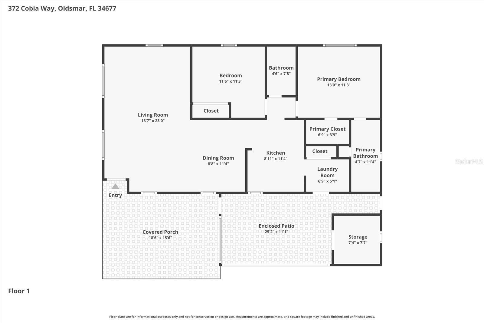
Living Area
1,048 Sqft
|
Lot Size
3,894 Sqft
|
| Property Features | Property Features | |||
|---|---|---|---|---|
| MLS ID: | MFRTB8499655 | Year Built: | 1984 | |
| Appliances: | Dryer, Microwave, Range, Refrigerator, Washer, Water Softener | Architectural Style: | Contemporary | |
| Association Amenities: | Clubhouse, Maintenance | Association Fee Includes: | Escrow Reserves Fund, Maintenance Grounds | |
| Body Type: | Double Wide | Community Features: | Buyer Approval Required, Deed Restrictions, Golf Carts OK | |
| Construction Materials: | Vinyl Siding | Cooling: | Central Air | |
| Country: | US | County Or Parish: | Pinellas | |
| Direction Faces: | East | Exterior Features: | Storage | |
| Fencing: | Fenced, Vinyl | Flooring: | Laminate | |
| Foundation Details: | Crawlspace | Furnished: | Negotiable | |
| Heating: | Central | Laundry Features: | Inside | |
| Levels: | One | Listing Agreement: | Exclusive Right To Sell | |
| Listing Terms: | Cash, Conventional | Lot Features: | Paved | |
| Occupant Type: | Owner | Other Structures: | Shed(s) | |
| Parking Features: | Driveway | Patio And Porch Features: | Covered, Patio, Screened | |
| Pets Allowed: | Yes | Property Sub Type: | Manufactured Home | |
| Property Type: | Residential | Road Surface Type: | Paved | |
| Roof: | Metal | Sewer: | Public Sewer | |
| Showing Requirements: | Appointment Only, Combination Lock Box, Lockbox, ShowingTime | Special Listing Conditions: | None | |
| Standard Status: | Active | State Or Province: | FL | |
| Utilities: | Cable Available, Electricity Connected, Sewer Connected, Water Connected | Vegetation: | Mature Landscaping | |
| Water Source: | Public | Window Features: | Blinds, Window Treatments | |
| Rooms | Rooms | |||
|---|---|---|---|---|
| Primary Bedroom: | 13x11.3 ft | Bedroom 2: | 11.6x11.3 ft | |
| Kitchen: | 8.11x11.4 ft | Living Room: | 13.7x23 ft | |
| Dining Room: | 8.8x11.4 ft | Balcony/Porch/Lanai: | 18.6x15.6 ft | |