
|
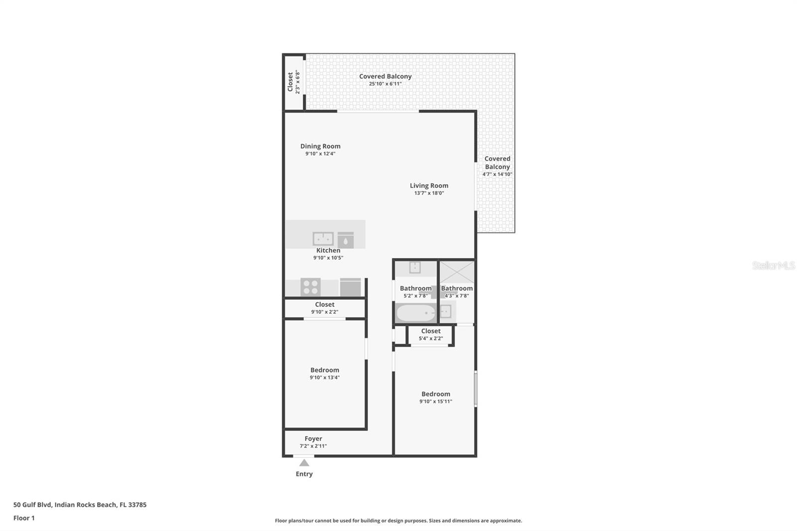
Bedrooms
2
|
Bathrooms
2
|
Living Area
1,008 Sqft
|
| Property Features | Property Features | |||
|---|---|---|---|---|
| MLS ID: | MFRTB8500299 | Year Built: | 1972 | |
| Appliances: | Other | Association Amenities: | Pool | |
| Association Fee Includes: | Cable TV, Pool, Escrow Reserves Fund, Maintenance Structure, Maintenance Grounds, Other, Pest Control, Sewer, Trash, Water | Community Features: | Buyer Approval Required, Pool | |
| Construction Materials: | Cement Siding, Concrete, Frame | Cooling: | Central Air | |
| Country: | US | County Or Parish: | Pinellas | |
| Direction Faces: | East | Exterior Features: | Balcony, Sliding Doors | |
| Flooring: | Carpet, Tile | Foundation Details: | Slab, Stem Wall | |
| Furnished: | Furnished | Heating: | Central | |
| Laundry Features: | None | Levels: | One | |
| Listing Agreement: | Exclusive Right To Sell | Listing Terms: | Cash, Conventional | |
| Occupant Type: | Tenant | Parking Features: | Assigned, Guest | |
| Pets Allowed: | No | Possession: | Close Of Escrow, Negotiable | |
| Property Sub Type: | Condominium | Property Type: | Residential | |
| Road Surface Type: | Asphalt | Roof: | Other | |
| Sewer: | Public Sewer | Showing Requirements: | 24 Hour Notice, Appointment Only, Call Listing Agent, Listing Agent Must Accompany | |
| Special Listing Conditions: | None | Standard Status: | Active | |
| State Or Province: | FL | Utilities: | Cable Available, Electricity Available, Electricity Connected, Water Available, Water Connected | |
| Water Source: | Public | Waterfront Features: | Beach Front | |
| Rooms | Rooms | |||
|---|---|---|---|---|
| Living Room: | Kitchen: | |||
| Primary Bedroom: | ||||