8019 N GOMEZ AVE, TAMPA, FL, 33614
$795,000
Residential
Bedrooms
5
Bathrooms
4
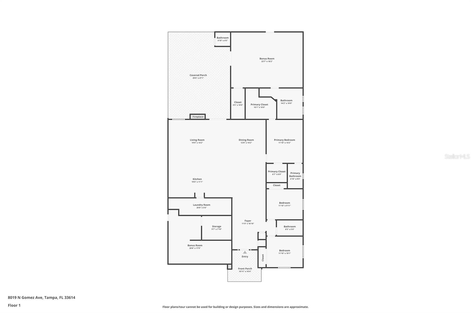
Living Area
3,104 Sqft
Lot Size
15,000 Sqft
Nestled in the 33614 zip code of Tampa, this breathtaking 5-bedroom, 3.5-bath estate exudes elegance and sophistication. Spanning over 3,100 square feet under air and a total of 4,190 square feet, it has been fully remodeled inside and out. The home showcases a brand-new $45,000 kitchen, soaring 14-foot cathedral ceilings, and a completely new roof. The interior and exterior have been freshly painted, offering a pristine ambiance. Outside, a driveway accommodating up to 10 vehicles and a side carport ensure ample space. The expansive 0.34-acre lot features an exterior kitchen, a half-bath, and RV hookups, while the backyard is ready for a dream pool. This is more than a home—it’s a luxurious retreat, ready to create your next chapter of cherished memories.
Property Details
Property Features Property Features
MLS ID: MFRTB8500576 Year Built: 2000
Appliances: Microwave, Range, Refrigerator Construction Materials: Block
Cooling: Central Air Country: US
County Or Parish: Hillsborough Direction Faces: West
Exterior Features: Outdoor Grill, Outdoor Kitchen, Storage Flooring: Ceramic Tile
Foundation Details: Other, Slab Furnished: Unfurnished
Heating: Central Laundry Features: Laundry Room
Levels: One Listing Agreement: Exclusive Right To Sell
Listing Terms: Cash, Conventional, FHA Occupant Type: Owner
Property Sub Type: Single Family Residence Property Type: Residential
Road Surface Type: Asphalt Roof: Shingle
Sewer: Public Sewer Showing Requirements: ShowingTime
Special Listing Conditions: None Standard Status: Active
State Or Province: FL Utilities: Cable Connected, Electricity Connected
Water Source: Public
Rooms Rooms
Primary Bedroom: 15x12 ft Primary Bathroom: 8x10 ft
Kitchen: 17x15 ft Living Room: 20x18 ft
We love to hear from you