
|
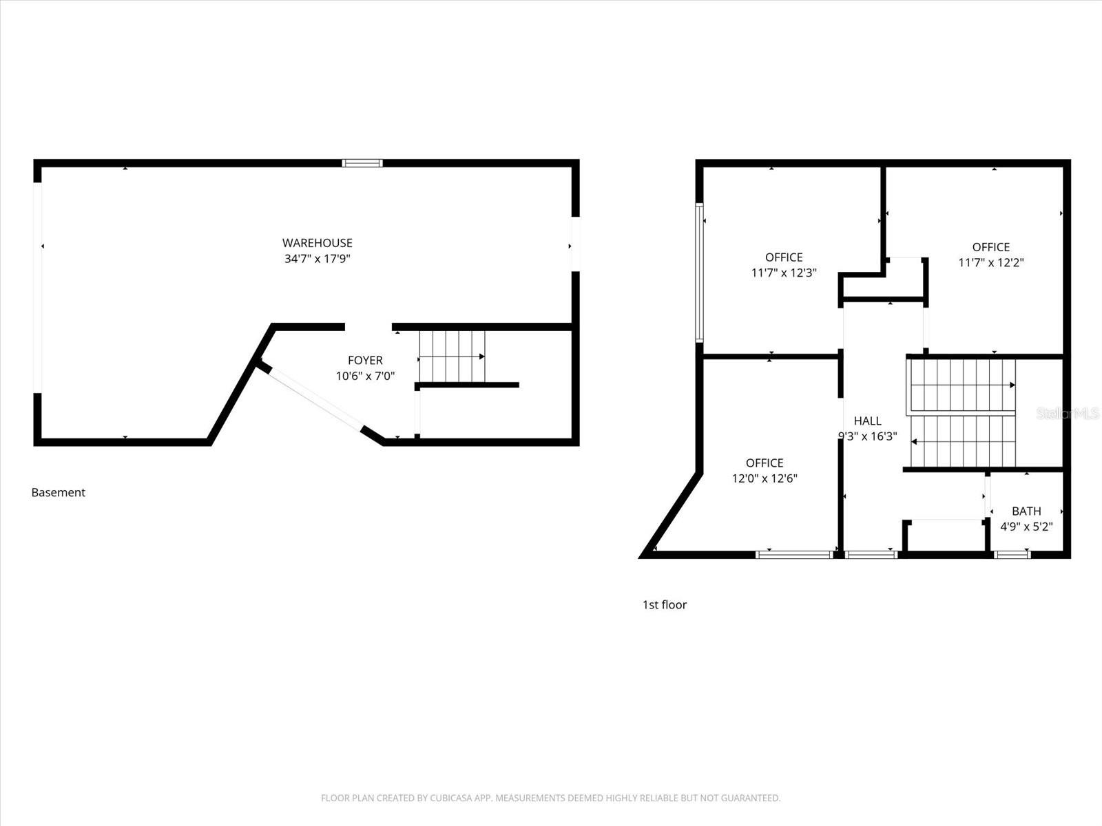
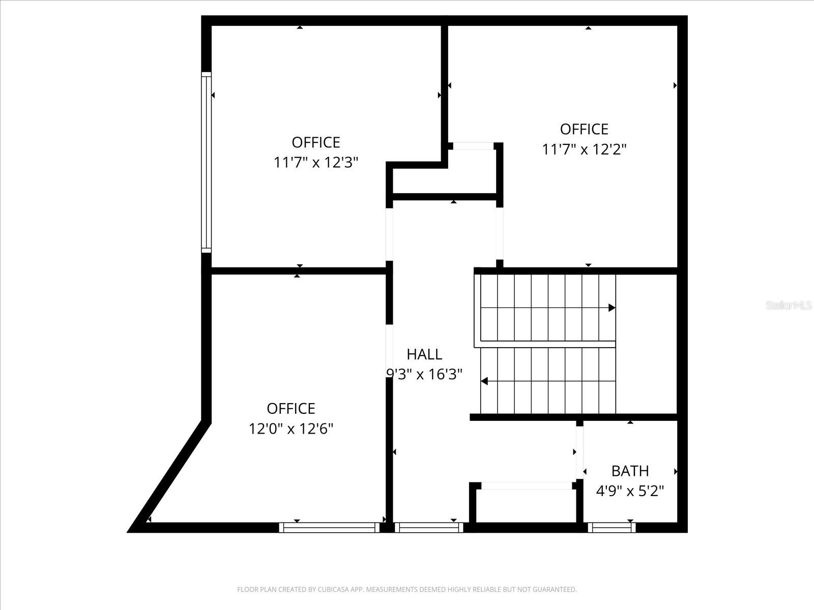
Living Area
1,400 Sqft
|
Lot Size
2,900 Sqft
|
| Property Features | Property Features | |||
|---|---|---|---|---|
| MLS ID: | MFRTB8501235 | Year Built: | 1984 | |
| Construction Materials: | Block, Concrete | Cooling: | Central Air | |
| Country: | US | County Or Parish: | Hillsborough | |
| Foundation Details: | Slab | Lease Term: | Three to Five Years | |
| Listing Agreement: | Exclusive Right To Lease | Owner Pays: | None | |
| Possession: | Rental Agreement | Property Sub Type: | Retail | |
| Property Type: | Commercial Lease | Road Frontage Type: | City Street | |
| Road Responsibility: | Public Maintained Road | Road Surface Type: | Asphalt | |
| Showing Requirements: | Combination Lock Box, ShowingTime | Standard Status: | Active | |
| State Or Province: | FL | Tenant Pays: | Common Area Maintenance, Electricity, Grounds Care, Internet, Insurance, Pest Control, Taxes, Sewer, Telephone, Trash Collection, Water | |