
|
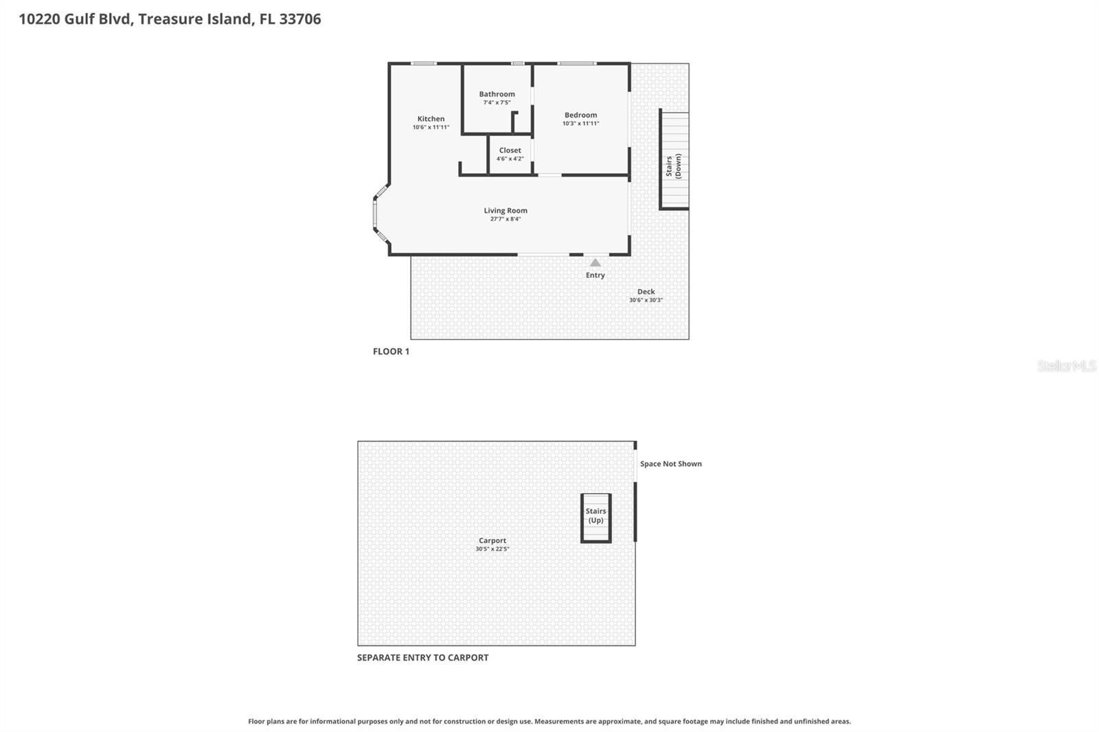
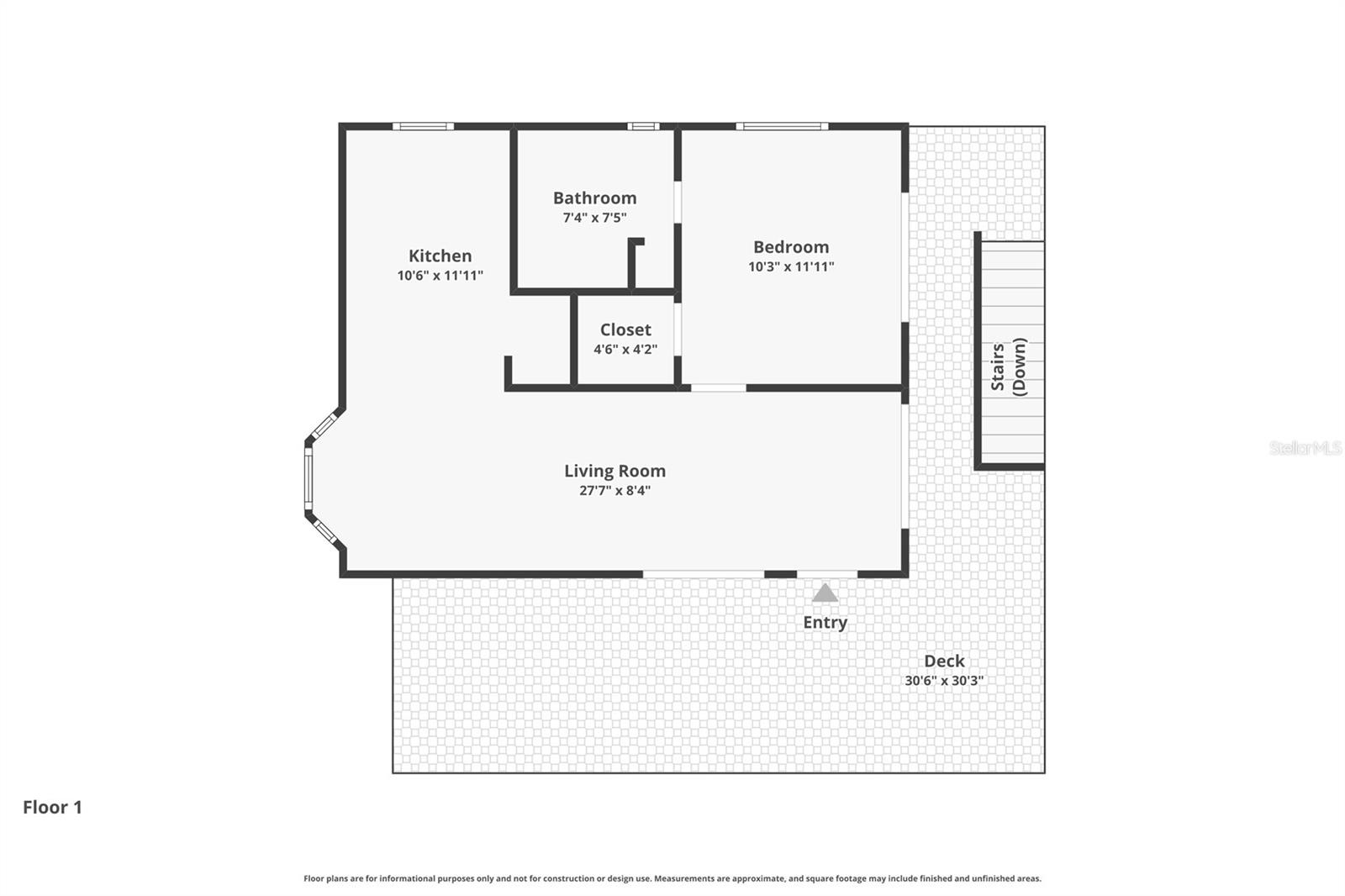
Bedrooms
1
|
Bathrooms
1
|
Living Area
605 Sqft
|
Lot Size
6,482 Sqft
|
| Property Features | Property Features | |||
|---|---|---|---|---|
| MLS ID: | MFRTB8501465 | Year Built: | 1959 | |
| Appliances: | Dishwasher, Disposal, Microwave, Range, Refrigerator, Washer | Community Features: | None | |
| Cooling: | Central Air | Country: | US | |
| County Or Parish: | Pinellas | Exterior Features: | Balcony | |
| Furnished: | Negotiable | Heating: | Central, Electric | |
| Laundry Features: | None | Lease Term: | Twelve Months | |
| Levels: | One | Occupant Type: | Vacant | |
| Owner Pays: | Electricity, Grounds Care, Sewer, Trash Collection, Water | Parking Features: | Covered | |
| Pets Allowed: | Breed Restrictions, Cats OK, Dogs OK, Number Limit, Yes | Property Sub Type: | Condominium | |
| Property Type: | Residential Lease | Road Surface Type: | Asphalt | |
| Showing Requirements: | Appointment Only, Call Listing Agent, See Remarks | Standard Status: | Active | |
| State Or Province: | FL | Window Features: | Blinds | |