
|
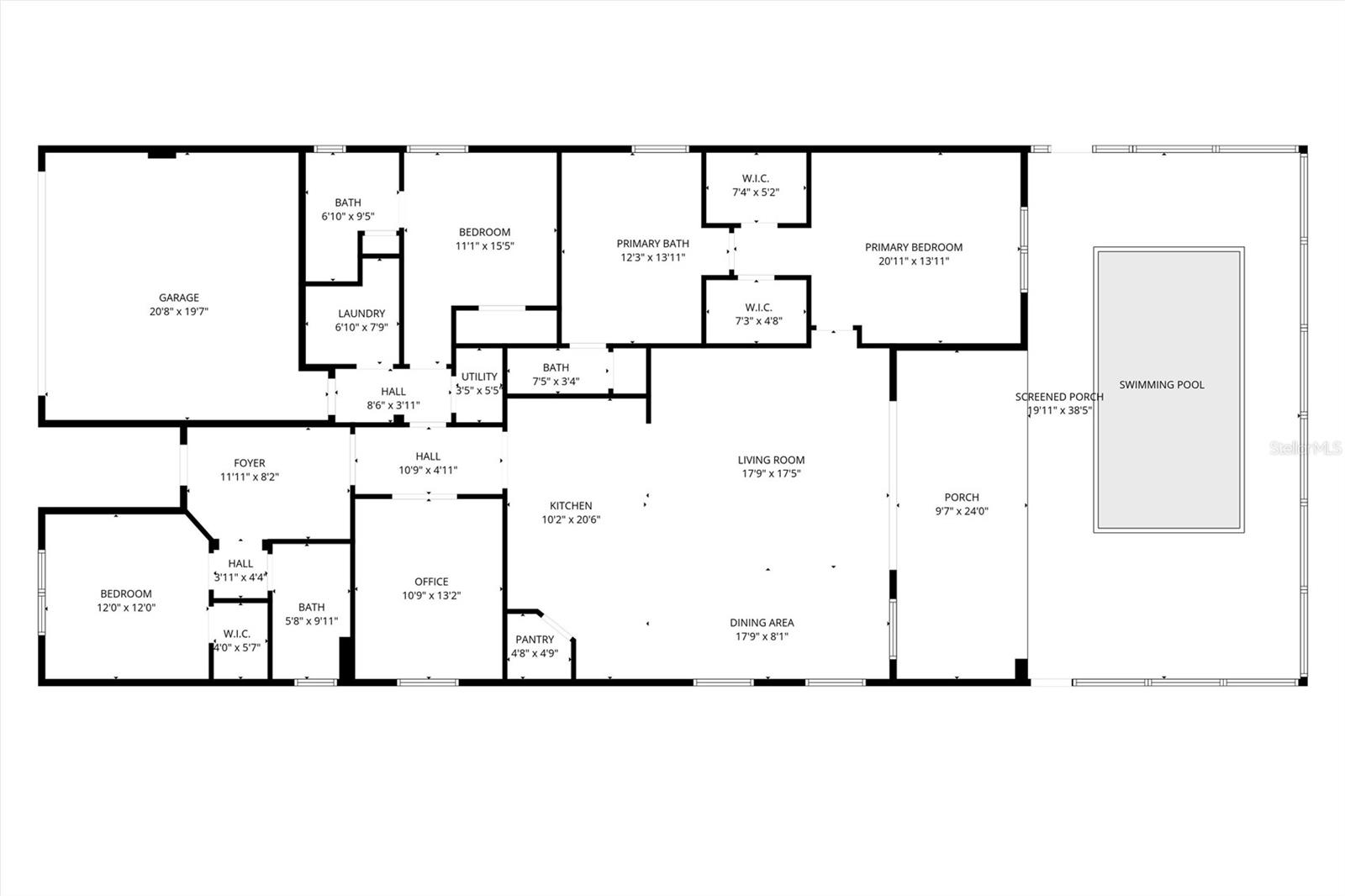
Bedrooms
3
|
Bathrooms
3
|
Living Area
2,214 Sqft
|
Lot Size
6,624 Sqft
|
| Property Features | Property Features | |||
|---|---|---|---|---|
| MLS ID: | MFRTB8502027 | Year Built: | 2022 | |
| Appliances: | Cooktop, Dishwasher, Disposal, Dryer, Electric Water Heater | Construction Materials: | Block | |
| Cooling: | Central Air | Country: | US | |
| County Or Parish: | Sarasota | Direction Faces: | Northwest | |
| Exterior Features: | Lighting, Outdoor Kitchen | Flooring: | Ceramic Tile | |
| Foundation Details: | Slab | Furnished: | Negotiable | |
| Heating: | Electric | Laundry Features: | Inside | |
| Levels: | One | Listing Agreement: | Exclusive Right To Sell | |
| Occupant Type: | Owner | Other Equipment: | Irrigation Equipment | |
| Pets Allowed: | Yes | Pool Features: | In Ground | |
| Property Condition: | Completed | Property Sub Type: | Single Family Residence | |
| Property Type: | Residential | Road Surface Type: | Asphalt | |
| Roof: | Tile | Sewer: | Public Sewer | |
| Showing Requirements: | Appointment Only, Call Listing Agent 2, Combination Lock Box | Special Listing Conditions: | None | |
| Standard Status: | Active | State Or Province: | FL | |
| Utilities: | Cable Available | Water Source: | Canal/Lake For Irrigation | |
| Waterfront Features: | Pond | |||
| Rooms | Rooms | |||
|---|---|---|---|---|
| Primary Bedroom: | Living Room: | |||
| Kitchen: | ||||