
|
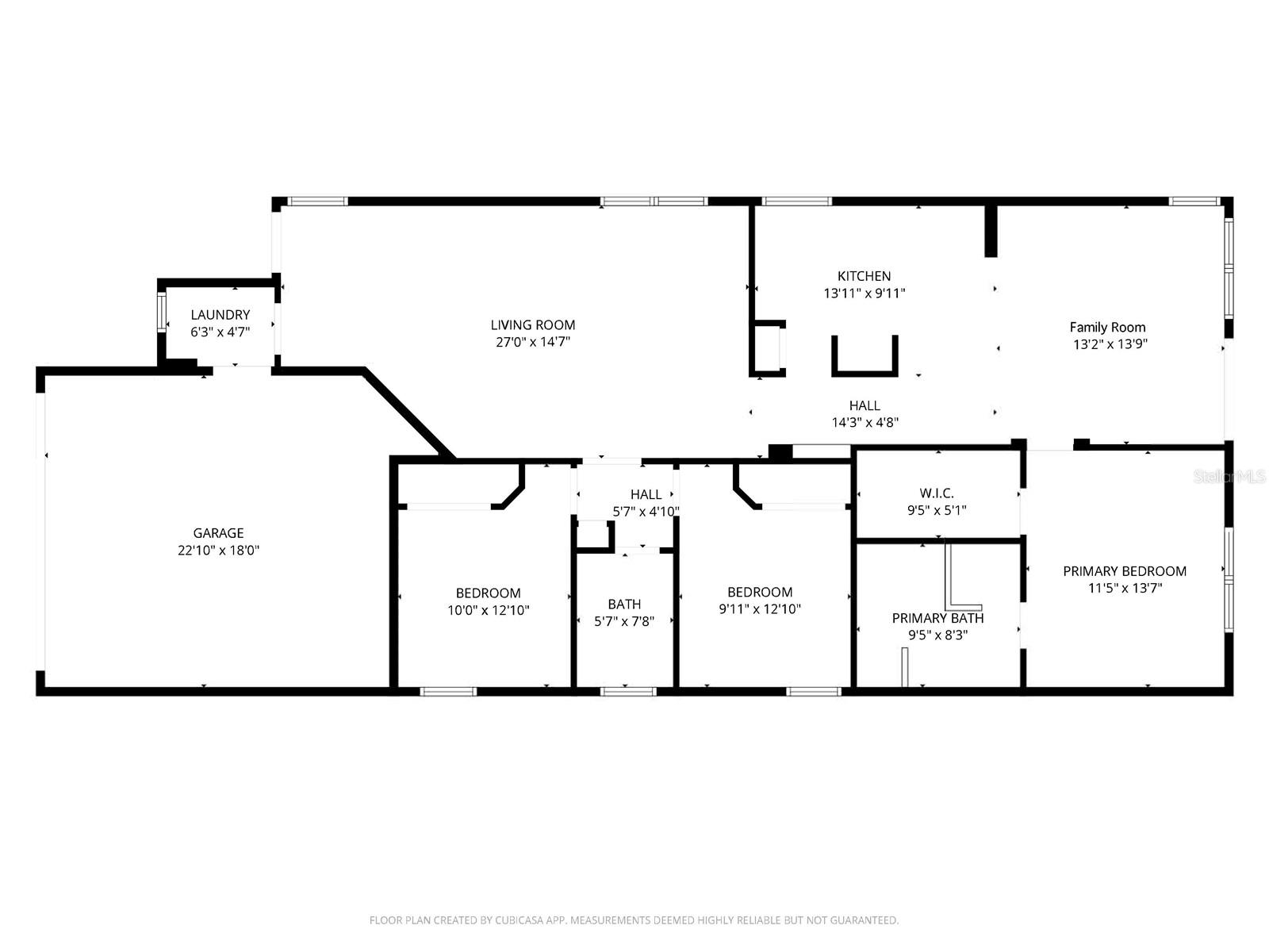
Bedrooms
3
|
Bathrooms
2
|
Living Area
1,596 Sqft
|
Lot Size
4,200 Sqft
|
| Property Features | Property Features | |||
|---|---|---|---|---|
| MLS ID: | MFRTB8502209 | Year Built: | 2005 | |
| Appliances: | Dishwasher, Disposal, Electric Water Heater, Microwave, Range, Range Hood, Refrigerator, Washer | Community Features: | Deed Restrictions, Dog Park, Park, Playground, Pool, Sidewalks | |
| Construction Materials: | Block, Stucco | Cooling: | Central Air | |
| Country: | US | County Or Parish: | Hillsborough | |
| Direction Faces: | East | Exterior Features: | Private Mailbox, Sidewalk, Sliding Doors | |
| Flooring: | Carpet, Tile | Foundation Details: | Slab | |
| Furnished: | Unfurnished | Heating: | Central, Electric | |
| Laundry Features: | Inside, Laundry Room | Levels: | One | |
| Listing Agreement: | Exclusive Right To Sell | Listing Terms: | Cash, Conventional, FHA, VA Loan | |
| Lot Features: | In County, Landscaped, Level, Sidewalk, Paved | Occupant Type: | Vacant | |
| Parking Features: | Driveway, Garage Door Opener | Patio And Porch Features: | Front Porch, Patio | |
| Pets Allowed: | Yes | Possession: | Close Of Escrow | |
| Property Sub Type: | Single Family Residence | Property Type: | Residential | |
| Road Responsibility: | Public Maintained Road | Road Surface Type: | Asphalt, Paved | |
| Roof: | Shingle | Security Features: | Smoke Detector(s) | |
| Sewer: | Public Sewer | Showing Requirements: | ShowingTime | |
| Special Listing Conditions: | None | Standard Status: | Active | |
| State Or Province: | FL | Utilities: | BB/HS Internet Available, Cable Available, Electricity Connected, Fire Hydrant, Sewer Connected, Underground Utilities, Water Connected | |
| Vegetation: | Trees/Landscaped | View: | Trees/Woods, Water | |
| Water Source: | Public | Window Features: | Blinds | |
| Rooms | Rooms | |||
|---|---|---|---|---|
| Living Room: | 27x15 ft | Kitchen: | 14x12 ft | |
| Family Room: | 13x14 ft | Primary Bedroom: | 11x14 ft | |
| Bedroom 2: | 10x13 ft | Bedroom 3: | 12x13 ft | |