
|
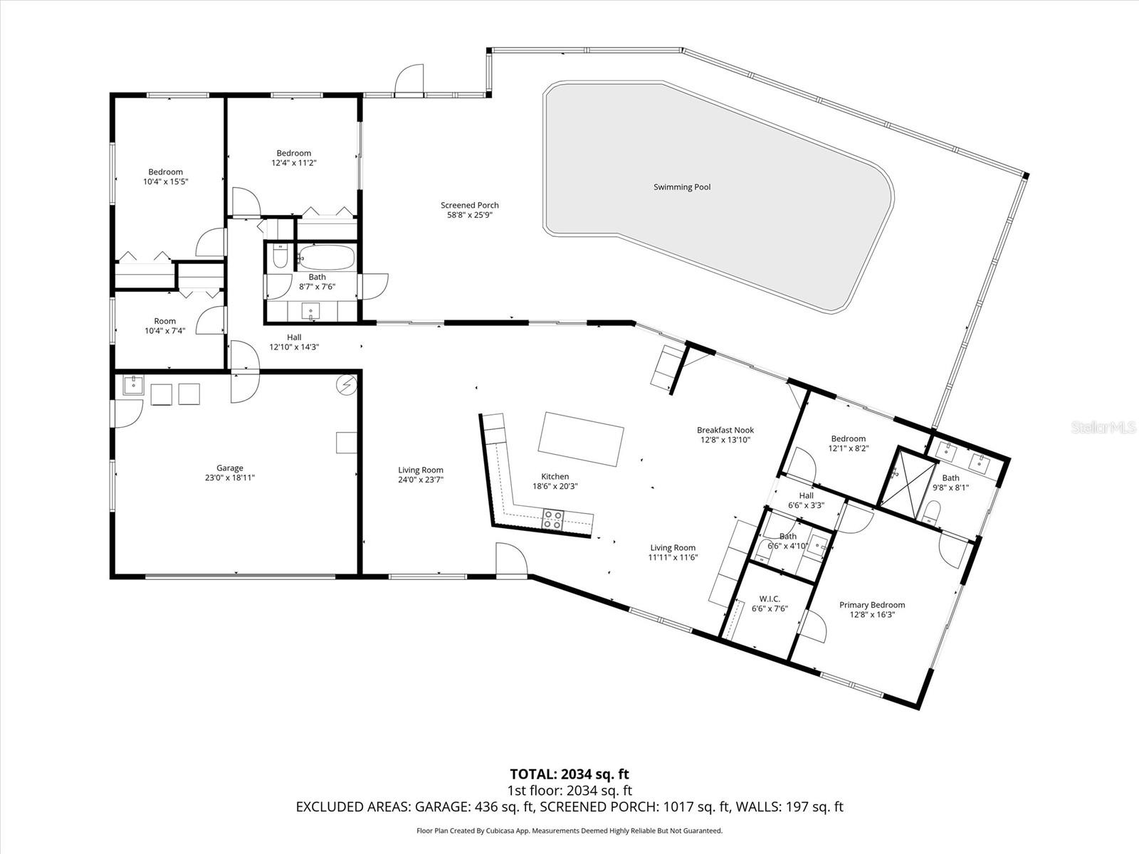
Bedrooms
5
|
Bathrooms
3
|
Living Area
2,206 Sqft
|
Lot Size
28,832 Sqft
|
| Property Features | Property Features | |||
|---|---|---|---|---|
| MLS ID: | MFRTB8502217 | Year Built: | 1971 | |
| Appliances: | Dishwasher, Disposal, Dryer, Electric Water Heater, Microwave, Range Hood, Refrigerator, Washer | Construction Materials: | Block | |
| Cooling: | Central Air | Country: | US | |
| County Or Parish: | Pinellas | Direction Faces: | South | |
| Exterior Features: | Sliding Doors | Flooring: | Ceramic Tile, Tile | |
| Foundation Details: | Slab | Furnished: | Unfurnished | |
| Heating: | Central | Laundry Features: | In Garage | |
| Levels: | One | Listing Agreement: | Exclusive Right To Sell | |
| Listing Terms: | Cash, Conventional | Occupant Type: | Vacant | |
| Other Structures: | Workshop | Parking Features: | Circular Driveway, Oversized | |
| Pool Features: | Deck, In Ground, Screen Enclosure | Possession: | Close Of Escrow | |
| Property Sub Type: | Single Family Residence | Property Type: | Residential | |
| Road Surface Type: | Asphalt | Roof: | Tile | |
| Sewer: | Public Sewer | Showing Requirements: | Appointment Only, Call Listing Agent, Listing Agent Must Accompany | |
| Special Listing Conditions: | None | Standard Status: | Active | |
| State Or Province: | FL | Utilities: | Cable Connected, Electricity Connected, Sewer Connected | |
| Water Source: | Public | Waterfront Features: | Creek | |
| Rooms | Rooms | |||
|---|---|---|---|---|
| Primary Bedroom: | Bedroom 2: | |||
| Living Room: | Kitchen: | |||