
|
Bedrooms
2
|
Bathrooms
2
|
Living Area
1,205 Sqft
|
Lot Size
4,125 Sqft
|
| Property Features | Property Features | |||
|---|---|---|---|---|
| MLS ID: | MFRTB8502466 | Year Built: | 1988 | |
| Appliances: | Dishwasher, Dryer, Electric Water Heater, Microwave, Range, Refrigerator, Washer | Association Amenities: | Pickleball Court(s), Pool, Tennis Court(s) | |
| Association Fee Includes: | Pool, Sewer, Trash, Water | Community Features: | Pool, Tennis Court(s) | |
| Construction Materials: | Frame | Cooling: | Central Air | |
| Country: | US | County Or Parish: | Pinellas | |
| Direction Faces: | South | Exterior Features: | Lighting | |
| Flooring: | Ceramic Tile, Luxury Vinyl | Foundation Details: | Slab | |
| Furnished: | Unfurnished | Heating: | Electric | |
| Laundry Features: | Inside | Levels: | One | |
| Listing Agreement: | Exclusive Right To Sell | Listing Terms: | Cash, Conventional, FHA, VA Loan | |
| Occupant Type: | Vacant | Patio And Porch Features: | Deck, Enclosed | |
| Pets Allowed: | Cats OK, Dogs OK, Size Limit, Yes | Possession: | Close Of Escrow | |
| Property Condition: | Completed | Property Sub Type: | Villa | |
| Property Type: | Residential | Road Surface Type: | Asphalt | |
| Roof: | Shingle | Sewer: | Public Sewer | |
| Showing Requirements: | Supra Lock Box | Special Listing Conditions: | None | |
| Standard Status: | Active | State Or Province: | FL | |
| Utilities: | Cable Available, Public | View: | Water | |
| Water Source: | Public | Waterfront Features: | Canal - Saltwater | |
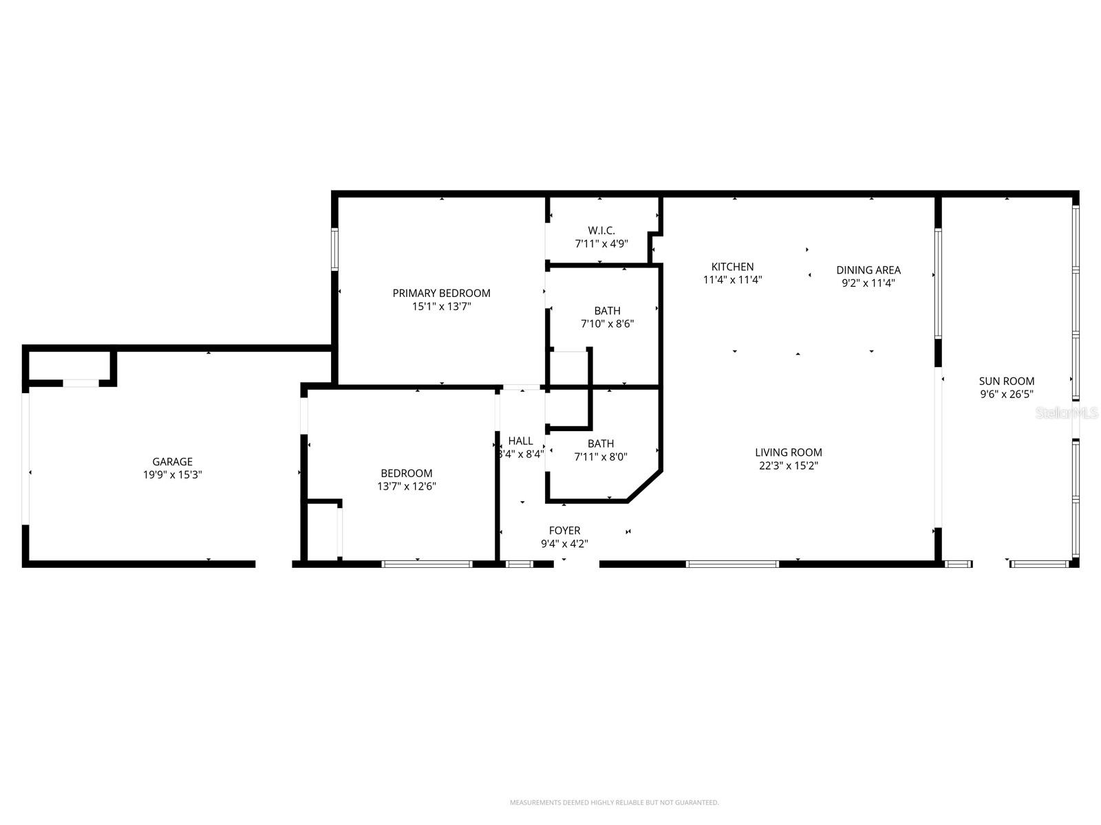
| Rooms | Rooms | |||
|---|---|---|---|---|
| Kitchen: | 9x10 ft | Living Room: | 16x20 ft | |
| Dining Room: | 9x10 ft | Primary Bedroom: | 14x14 ft | |
| Bedroom 1: | 12x14 ft | |||