
|
Bedrooms
3
|
Bathrooms
2
|
Living Area
1,770 Sqft
|
Lot Size
14,828 Sqft
|
| Property Features | Property Features | |||
|---|---|---|---|---|
| MLS ID: | MFRTB8502824 | Year Built: | 1971 | |
| Appliances: | Dishwasher, Disposal, Dryer, Microwave, Range, Refrigerator, Washer | Architectural Style: | Florida | |
| Construction Materials: | Vinyl Siding, Frame | Cooling: | Central Air | |
| Country: | US | County Or Parish: | Pinellas | |
| Direction Faces: | North | Exterior Features: | Dog Run, Private Yard, Storage | |
| Fencing: | Vinyl, Wood | Fireplace Features: | Family Room, Stone | |
| Flooring: | Carpet, Luxury Vinyl | Foundation Details: | Slab | |
| Furnished: | Unfurnished | Heating: | Central | |
| Laundry Features: | Inside, Laundry Room | Levels: | One | |
| Listing Agreement: | Exclusive Right To Sell | Listing Terms: | Cash, Conventional, FHA, VA Loan | |
| Lot Features: | In County, Landscaped, Oversized Lot, Street Dead-End, Paved, Unincorporated | Occupant Type: | Owner | |
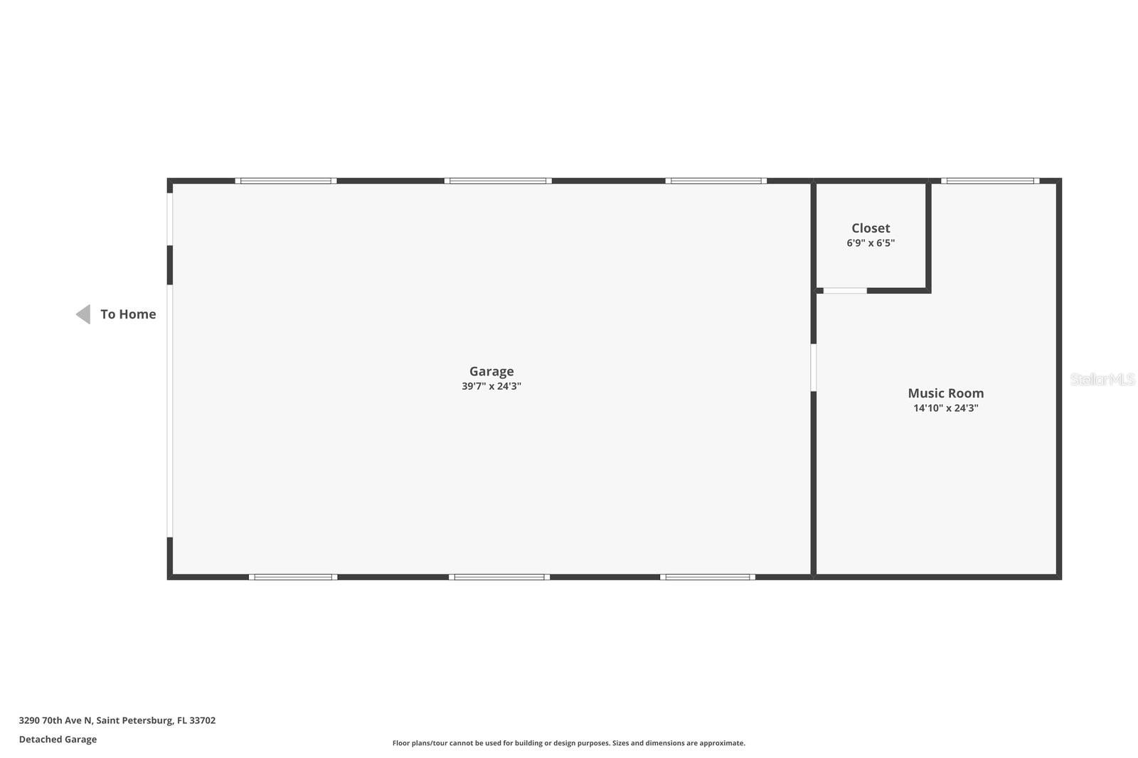
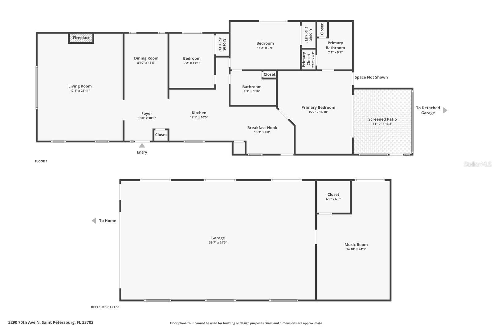
| Other Equipment: | Private Yard | Other Structures: | Other, Shed(s), Workshop | |
| Parking Features: | Covered, Driveway, Garage Door Opener, Golf Cart Parking, Guest, Oversized, Tandem, Workshop in Garage | Patio And Porch Features: | Covered, Enclosed, Patio, Porch, Rear Porch, Side Porch | |
| Possession: | Negotiable | Property Sub Type: | Single Family Residence | |
| Property Type: | Residential | Road Surface Type: | Concrete | |
| Roof: | Metal | Sewer: | Public Sewer | |
| Showing Requirements: | Supra Lock Box | Special Listing Conditions: | None | |
| Standard Status: | Active | State Or Province: | FL | |
| Utilities: | Cable Connected, Electricity Connected, Public, Sewer Connected, Underground Utilities | Vegetation: | Mature Landscaping | |
| Water Source: | None | |||
| Rooms | Rooms | |||
|---|---|---|---|---|
| Primary Bedroom: | Bathroom 2: | |||
| Living Room: | Kitchen: | |||