
|
Bedrooms
4
|
Bathrooms
2
|
Living Area
2,066 Sqft
|
Lot Size
8,015 Sqft
|
| Property Features | Property Features | |||
|---|---|---|---|---|
| MLS ID: | MFRV4941722 | Year Built: | 2005 | |
| Appliances: | Dishwasher, Range | Construction Materials: | Block, Concrete, Stucco | |
| Cooling: | Central Air | Country: | US | |
| County Or Parish: | Flagler | Direction Faces: | West | |
| Exterior Features: | Sidewalk | Flooring: | Carpet, Laminate, Tile | |
| Foundation Details: | Slab | Heating: | Central, Electric | |
| Laundry Features: | Inside, Laundry Room | Levels: | One | |
| Listing Agreement: | Exclusive Right To Sell | Listing Terms: | Cash, Conventional, FHA, VA Loan | |
| Occupant Type: | Tenant | Patio And Porch Features: | Front Porch | |
| Pets Allowed: | Yes | Property Sub Type: | Single Family Residence | |
| Property Type: | Residential | Road Surface Type: | Paved | |
| Roof: | Shingle | Sewer: | Public Sewer | |
| Showing Requirements: | 24 Hour Notice, Appointment Only, See Remarks, ShowingTime | Special Listing Conditions: | None | |
| Standard Status: | Active | State Or Province: | FL | |
| Utilities: | Electricity Connected, Sewer Connected, Water Connected | View: | Trees/Woods | |
| Water Source: | Public | |||
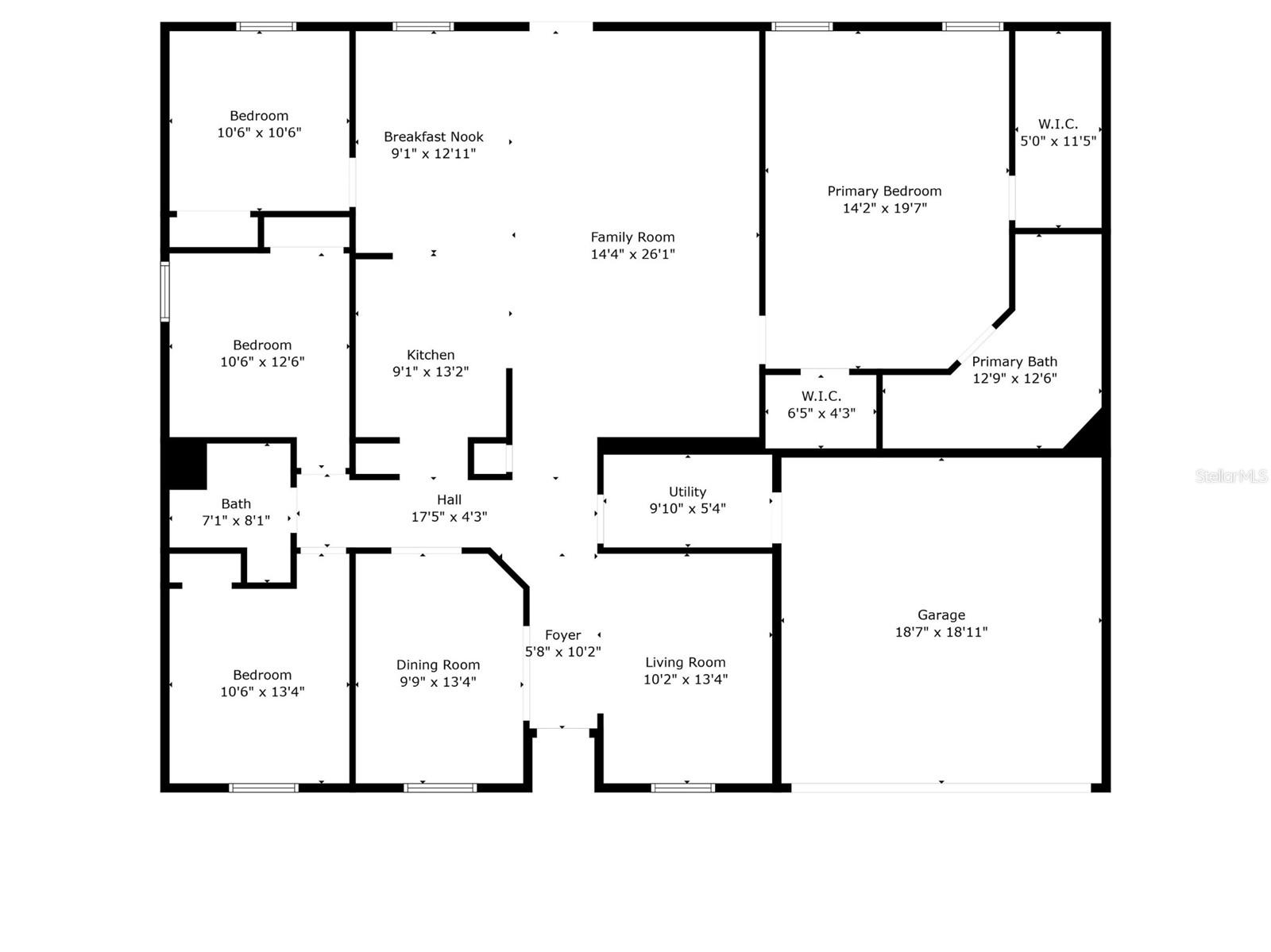
| Rooms | Rooms | |||
|---|---|---|---|---|
| Primary Bedroom: | 14.2x19.7 ft | Bedroom 1: | 10.6x13.4 ft | |
| Bedroom 2: | 10.6x12.6 ft | Bedroom 3: | 10.6x10.6 ft | |
| Kitchen: | 9.1x13.2 ft | Dining Room: | 9.9x13.4 ft | |
| Living Room: | 10.2x13.4 ft | Family Room: | 14.4x26.1 ft | |
| Laundry: | 9.1x5.4 ft | Foyer: | 5.8x10.2 ft | |