
|
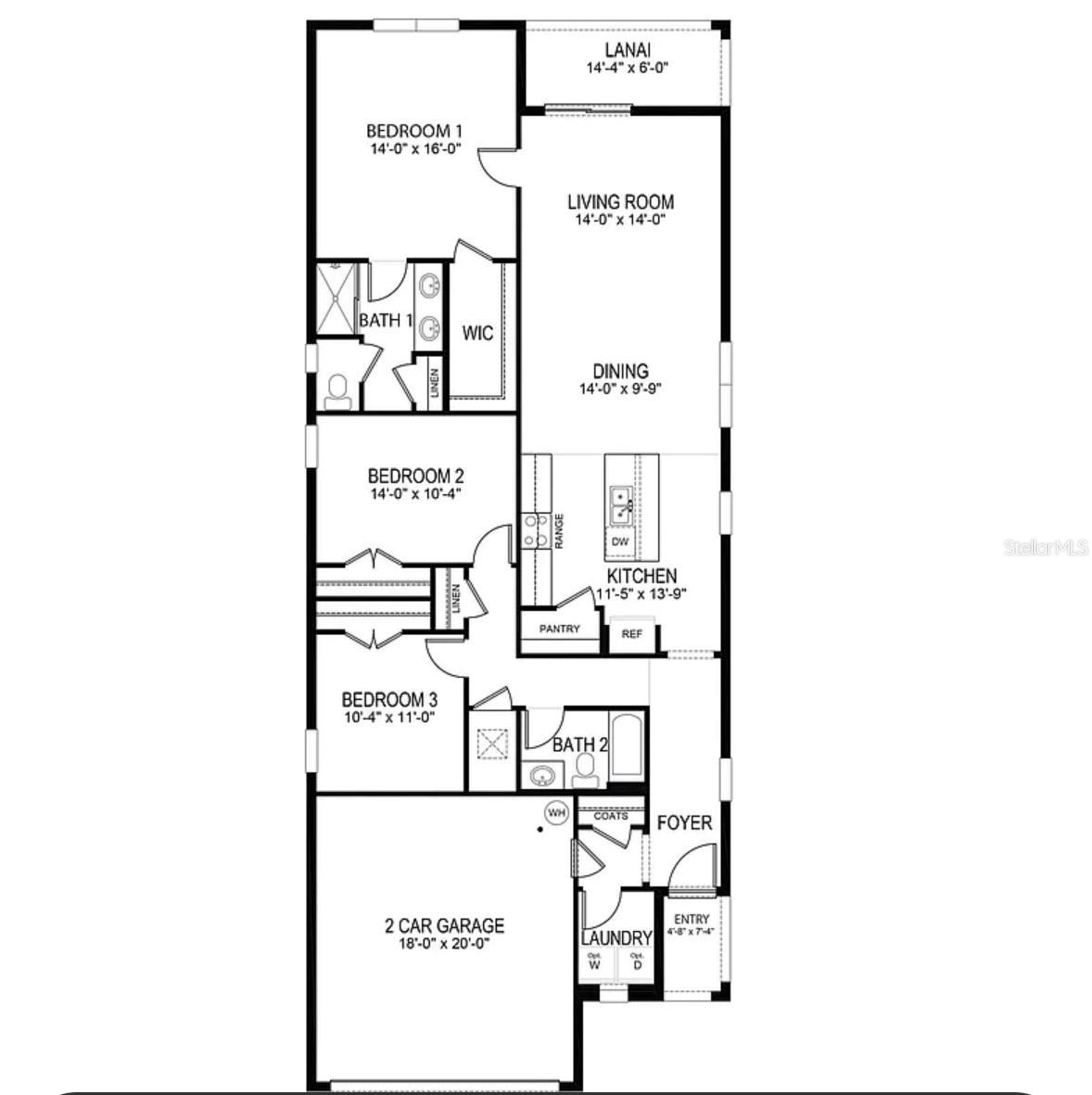
Bedrooms
3
|
Bathrooms
2
|
Living Area
1,649 Sqft
|
Lot Size
4,600 Sqft
|
| Property Features | Property Features | |||
|---|---|---|---|---|
| MLS ID: | MFRV4948562 | Year Built: | 2023 | |
| Appliances: | Dishwasher, Microwave, Range, Refrigerator | Architectural Style: | Contemporary, Florida | |
| Community Features: | Deed Restrictions, Park, Playground, Sidewalks, Street Lights | Construction Materials: | Block, Stucco | |
| Cooling: | Central Air | Country: | US | |
| County Or Parish: | Volusia | Direction Faces: | East | |
| Exterior Features: | Sidewalk, Sliding Doors | Fireplace Features: | Electric | |
| Flooring: | Carpet, Tile | Foundation Details: | Slab | |
| Furnished: | Unfurnished | Heating: | Central | |
| Laundry Features: | Electric Dryer Hookup, Inside, Laundry Room, Washer Hookup | Levels: | One | |
| Listing Agreement: | Exclusive Right To Sell | Listing Terms: | Cash, Conventional, FHA, VA Loan | |
| Lot Features: | Level, Sidewalk, Paved, Unincorporated | Occupant Type: | Owner | |
| Other Equipment: | Irrigation Equipment | Patio And Porch Features: | Porch | |
| Pets Allowed: | Yes | Possession: | Close Of Escrow | |
| Property Condition: | Completed | Property Sub Type: | Single Family Residence | |
| Property Type: | Residential | Road Surface Type: | Asphalt, Paved | |
| Roof: | Shingle | Sewer: | Public Sewer | |
| Showing Requirements: | Appointment Only, Lock Box Electronic, See Remarks, ShowingTime | Special Listing Conditions: | None | |
| Standard Status: | Active | State Or Province: | FL | |
| Utilities: | Cable Available, Electricity Connected, Public, Underground Utilities | View: | Trees/Woods | |
| Water Source: | Public | |||
| Rooms | Rooms | |||
|---|---|---|---|---|
| Primary Bedroom: | 14x16 ft | Bedroom 2: | 14x10 ft | |
| Bedroom 3: | 10x11 ft | Living Room: | 14x14 ft | |
| Kitchen: | 12x14 ft | Dining Room: | 14x9 ft | |