
|
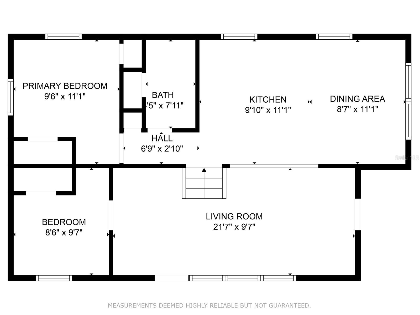
Bedrooms
2
|
Bathrooms
1
|
Living Area
742 Sqft
|
Lot Size
5,154 Sqft
|
| Property Features | Property Features | |||
|---|---|---|---|---|
| MLS ID: | MFRW7871965 | Year Built: | 1985 | |
| Appliances: | Electric Water Heater, Microwave, Range, Range Hood, Refrigerator | Body Type: | Single Wide | |
| Construction Materials: | Vinyl Siding, Frame | Cooling: | Central Air | |
| Country: | US | County Or Parish: | Hernando | |
| Direction Faces: | East | Exterior Features: | Rain Barrel/Cistern(s) | |
| Flooring: | Laminate, Vinyl, Wood | Foundation Details: | Pillar/Post/Pier | |
| Furnished: | Furnished | Heating: | Central, Heat Pump | |
| Laundry Features: | Laundry Room | Levels: | One | |
| Listing Agreement: | Exclusive Right To Sell | Listing Terms: | Cash | |
| Occupant Type: | Owner | Pets Allowed: | Cats OK, Dogs OK | |
| Property Condition: | Completed | Property Sub Type: | Manufactured Home | |
| Property Type: | Residential | Road Surface Type: | Paved | |
| Roof: | Metal | Sewer: | Private Sewer | |
| Showing Requirements: | Appointment Only | Special Listing Conditions: | None | |
| Standard Status: | Active | State Or Province: | FL | |
| Utilities: | Cable Available, Electricity Available, Sewer Connected, Water Connected | Water Source: | Private | |
| Rooms | Rooms | |||
|---|---|---|---|---|
| Living Room: | 22x10 ft | Kitchen: | 20x12 ft | |
| Primary Bedroom: | 12x10 ft | Bathroom 2: | 9x10 ft | |