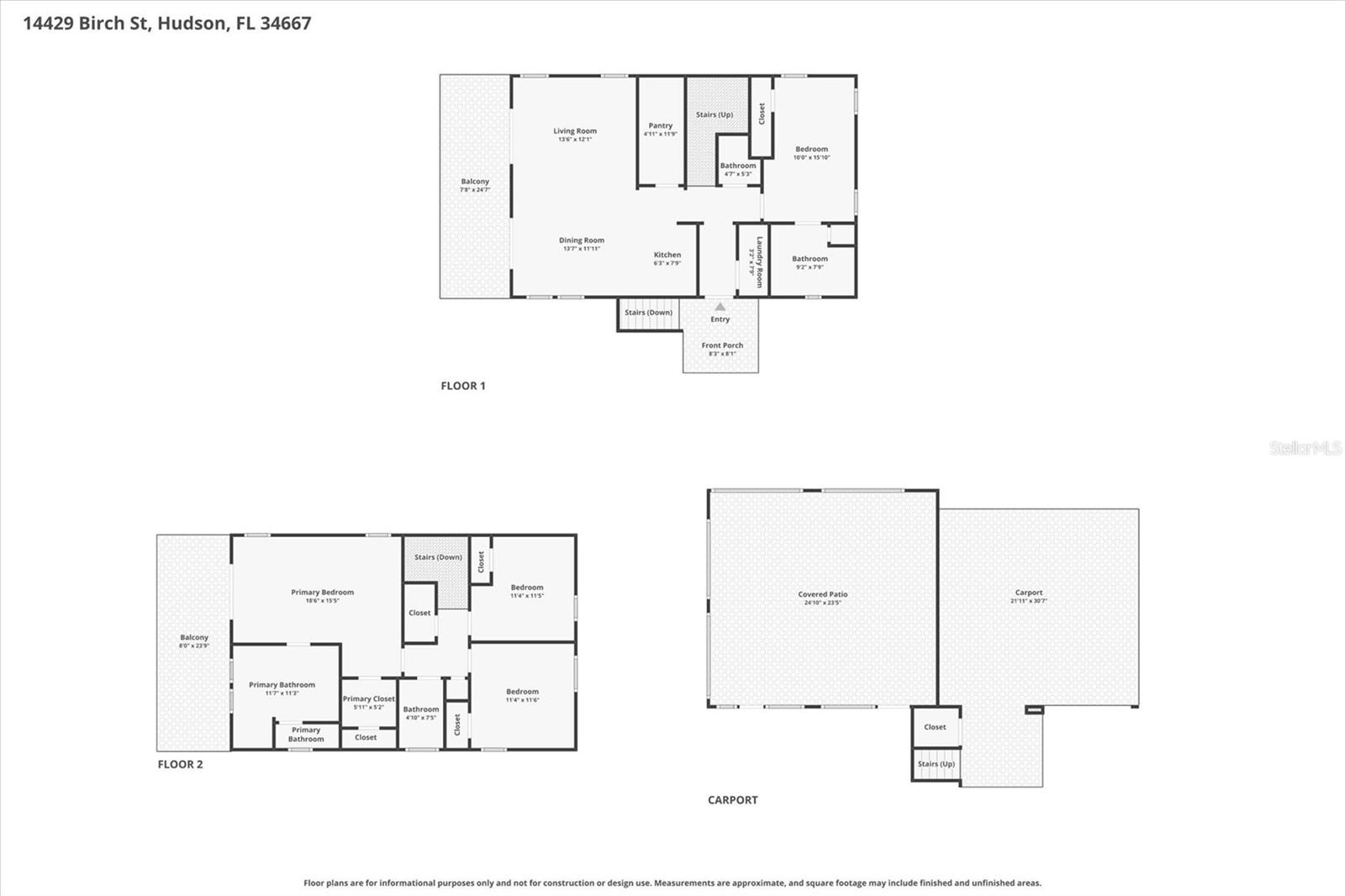
Unobstructed Gulf views, instant access to open water, and a true boating lifestyle define this exceptional 4-bedroom, 3-bathroom coastal stilt home. With 50 feet of waterfront, direct Gulf access, and no fixed bridges, this property is built for those who live for the water. Step out back to your 50 feet of concrete seawall and floating dock on a saltwater canal that leads straight to the Gulf of Mexico. Spend your days chasing redfish, snook, and snapper, or simply relax as dolphins and manatees glide past your backyard. From sunrise launches to sunset cruises, this home delivers the ultimate Gulf Coast boating experience. Rising three stories, the home is designed to maximize water views from nearly every level. The second floor features an open-concept living space with a gourmet kitchen offering granite countertops, stainless steel appliances, white shaker cabinetry, and a large walk-in pantry. The dining and living areas flow seamlessly to a spacious covered porch overlooking the Gulf—perfect for entertaining or winding down after a day on the water. This level also includes an oversized bedroom with private guest bathroom, half bathroom and laundry room. The third floor elevates the experience even further with a private primary suite retreat. Enjoy your own covered balcony with sweeping, unobstructed Gulf views. The spa-style ensuite includes a soaking tub, walk-in shower, and dual granite vanities. Two additional guest bedrooms and a full bathroom provide ample space for family and guests, all designed with comfort and coastal living in mind. On the ground level, the outdoor lifestyle takes center stage. A versatile swim spa functions as a pool in the summer and a hot tub in the winter. The screened-in sitting area overlooks the canal, while the outdoor kitchen, shower, and expansive covered space create the perfect setup for entertaining, relaxing, and storing all your boating gear. There’s plenty of room for vehicles, golf carts, and water toys, and a cargo lift makes moving supplies to the main living level effortless. Built in 2022, this home is equipped with modern hurricane features including impact windows and doors, along with a durable metal roof and siding. Tile flooring runs throughout for easy maintenance. With no HOA and a strong history as a successful short-term rental, this property can be purchased turnkey—fully furnished and ready to enjoy or generate income immediately. Located in Hudson Beach, one of Florida’s last authentic waterfront communities, you’ll experience a laid-back coastal vibe where boating is a way of life. Cruise south to the popular Anclote Key Sandbar or explore the untouched beauty of Anclote Key Preserve State Park. Head north to Hernando Beach Flats, or venture further to the clear spring-fed waters of the Weeki Wachee River, Homosassa River, and Crystal River. With convenient access to US-19, everyday essentials, waterfront dining, and marinas are just minutes away, while Tampa International Airport is about an hour drive. This is more than a home—it’s a Gulf Coast lifestyle. Fish from your dock, cruise to nearby sandbars, entertain under the stars, and live where every day ends with a sunset over the water.
Property Details
Property Features Property Features
MLS ID: MFRW7885099 Year Built: 2022
Appliances: Dishwasher, Microwave, Range, Refrigerator, Washer Construction Materials: HardiPlank Type
Cooling: Central Air Country: US
County Or Parish: Pasco Direction Faces: South
Exterior Features: Balcony, Outdoor Shower, Private Mailbox, Private Yard Flooring: Ceramic Tile
Foundation Details: Stilt/On Piling Furnished: Negotiable
Heating: Central, Electric Laundry Features: Laundry Room
Levels: Three Or More Listing Agreement: Exclusive Right To Sell
Listing Terms: Cash, Conventional, FHA, VA Loan Occupant Type: Owner
Other Equipment: Private Yard Possession: Close Of Escrow
Property Sub Type: Single Family Residence Property Type: Residential
Road Responsibility: Public Maintained Road Road Surface Type: Asphalt
Roof: Metal Sewer: Public Sewer
Showing Requirements: ShowingTime Spa Features: Above Ground, Heated, Swim Spa
Special Listing Conditions: None Standard Status: Active
State Or Province: FL Utilities: Electricity Connected
View: Water Water Source: Public
Waterfront Features: Canal - Saltwater
Rooms Rooms
Primary Bedroom: Kitchen:
Living Room:
We love to hear from you