
|
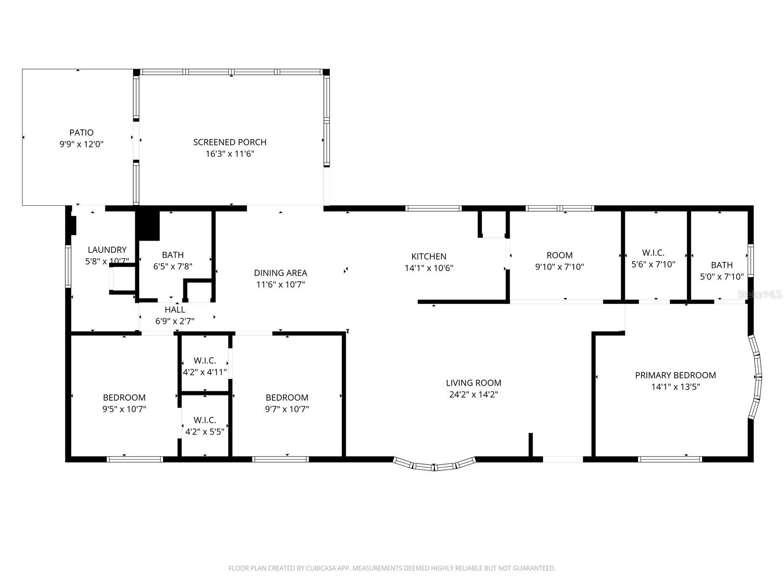
Bedrooms
3
|
Bathrooms
2
|
Living Area
1,344 Sqft
|
Lot Size
8,807 Sqft
|
| Property Features | Property Features | |||
|---|---|---|---|---|
| MLS ID: | MFRW7885127 | Year Built: | 1973 | |
| Appliances: | Dishwasher, Electric Water Heater, Range, Refrigerator | Architectural Style: | Florida | |
| Association Fee Includes: | Maintenance Grounds, Trash, Water | Body Type: | Double Wide | |
| Community Features: | Buyer Approval Required, Clubhouse, Deed Restrictions, Fitness Center, Golf Carts OK, Pool, Tennis Court(s) | Construction Materials: | Metal Frame | |
| Cooling: | Central Air | Country: | US | |
| County Or Parish: | Pasco | Direction Faces: | North | |
| Exterior Features: | Awning(s), Private Mailbox | Flooring: | Carpet, Tile | |
| Foundation Details: | Crawlspace | Furnished: | Unfurnished | |
| Green Energy Generation: | Solar | Heating: | Electric, Solar | |
| Laundry Features: | Inside, Laundry Room | Levels: | One | |
| Listing Agreement: | Exclusive Right To Sell | Listing Terms: | Cash | |
| Lot Features: | Oversized Lot, Paved | Occupant Type: | Owner | |
| Parking Features: | Parking Pad | Patio And Porch Features: | Covered, Screened | |
| Pets Allowed: | Cats OK, Dogs OK | Possession: | Negotiable | |
| Property Sub Type: | Mobile Home | Property Type: | Residential | |
| Road Surface Type: | Paved | Roof: | Metal | |
| Sewer: | Public Sewer | Showing Requirements: | Appointment Only, No Lockbox, See Remarks, ShowingTime | |
| Special Listing Conditions: | None | Standard Status: | Active | |
| State Or Province: | FL | Utilities: | Cable Available, Electricity Connected, Sewer Connected, Water Connected | |
| Vegetation: | Trees/Landscaped | Water Source: | Well | |
| Rooms | Rooms | |||
|---|---|---|---|---|
| Living Room: | Dining Room: | |||
| Kitchen: | Primary Bedroom: | |||
| Primary Bathroom: | Bedroom 2: | |||
| Bedroom 3: | Bathroom 2: | |||
| Laundry: | Balcony/Porch/Lanai: | |||