
|
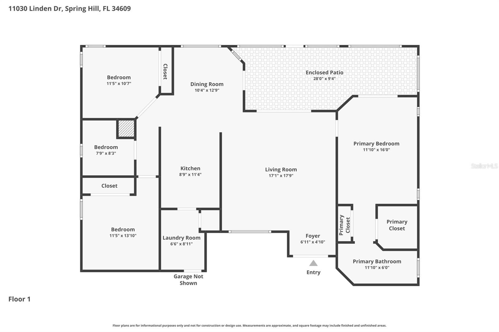
Bedrooms
3
|
Bathrooms
2
|
Living Area
1,496 Sqft
|
Lot Size
10,000 Sqft
|
| Property Features | Property Features | |||
|---|---|---|---|---|
| MLS ID: | MFRW7885181 | Year Built: | 2007 | |
| Appliances: | Dishwasher, Range, Refrigerator | Construction Materials: | Block, Stucco | |
| Cooling: | Central Air | Country: | US | |
| County Or Parish: | Hernando | Direction Faces: | Northeast | |
| Exterior Features: | Lighting | Flooring: | Carpet, Laminate | |
| Foundation Details: | Slab | Furnished: | Unfurnished | |
| Heating: | Central, Electric | Laundry Features: | Laundry Room | |
| Levels: | One | Listing Agreement: | Exclusive Right To Sell | |
| Listing Terms: | Cash, Conventional, FHA, VA Loan | Occupant Type: | Vacant | |
| Possession: | Close Of Escrow | Property Sub Type: | Single Family Residence | |
| Property Type: | Residential | Road Surface Type: | Asphalt | |
| Roof: | Shingle | Sewer: | Septic Tank | |
| Showing Requirements: | Supra Lock Box, Appointment Only, ShowingTime | Special Listing Conditions: | None | |
| Standard Status: | Active | State Or Province: | FL | |
| Utilities: | Cable Available, Electricity Available | Water Source: | Public | |
| Rooms | Rooms | |||
|---|---|---|---|---|
| Kitchen: | 8x11 ft | Living Room: | 17x17 ft | |
| Primary Bedroom: | 11x16 ft | |||